立即预约
免费定制整装家居
一站置家 全程无忧 一省到底
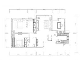
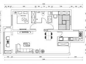
设计说明:
本案建筑面积85平米,根据业主需求设计了法式风格,整体以线条感为主,大量的石膏线和uv线条,突出质感和档次。富丽堂皇的装修风格,给人高端大气。
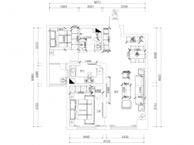
设计说明:
以肉粉色为主题的色彩,以欧式为中心设计,打造简欧得设计风格。
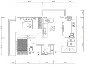
设计说明:
本案采用简欧风格,利用金属壁纸 倒棱镜 乳胶漆变颜色相互融合 使90平米的户型完美呈现简欧特色
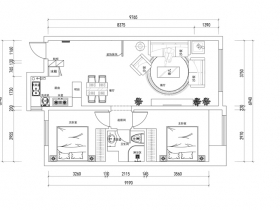
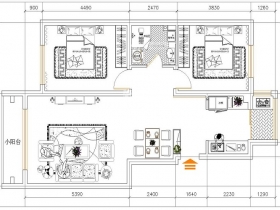
设计说明:
设计说明:生活原本有形有色,何必枯燥无味。用正确的方式来生活,活在当下。
设计师整体设计理念:本案运用简欧的设计元素,表现了情怀和对生活的一种状态,一种认知。
设计说明:
本案是北欧风格,提起欧式风格,大家普遍想到就是各种雕花石膏线和柱式,但本案采用的是现代理念,更偏向于简约现代的新表现,在年轻人的生活里,现代概念更贴合生活与美学的融合,这也是国内流行起来的现代北欧风格被客户所喜爱的一个方面。在设计的前期设计师也用鸟瞰图的形式,呈现了整体布局,全案考虑的做法,不同于大众设计都是一个点,一个位置的设计,容易造成装修不协调,层次不清晰和让业主迷惑的情况。
设计说明:
业主家庭情况及要求:业主的工作比较忙,每天都过着两点一线的生活。他希望回到家后能够放松,让人心情舒畅,感到宁静和安逸,希望在纷扰的现实生活中找到平衡,缔造出一个令人心驰神往的空间。设计师整体设计理念:本案是一个两居室的房子,此户型的装修风格属于简欧风格,简欧风格就是简化的欧式风格,相较于欧式风格更为实用和多元化。本案的整体色调为白色,对应着简欧的简单而不失奢华,营造典雅、自然、高贵的气质。
设计说明:
本案以简欧风格设计为主,在空间设计上利用欧式家具及元素符号,为客户住宅空间打造沉稳而贵气的格调。
设计说明:
美式田园风格主要是在色彩方面的家具的色彩上以原木自然色调为基础,白色,绿色,红色,黄色,黑色,居室整体色彩氛围较为普遍,特别是在墙面的颜色上体现自然,怀旧的质朴气息