立即预约
免费定制整装家居
一站置家 全程无忧 一省到底
设计说明:
设计说明:人的一生,绝大部分时间是在室内度过的,因此,人们设计创造的室内环境要更加考虑一些舒适性
设计说明:
设计师整体设计理念: 没有太多的修饰,低调不张扬,是这个风格的主要元素。
业主家庭情况及要求: 整体室内纯色墙面,温馨一些,墙面不留白,简单,不要吊棚,局部可做一个划分。
设计说明:
本设计主要以简约美式为基调为主,以实木家具辅以布艺沙发搭配整体空间,突出其舒适及休闲的宁静生活空间。
设计说明:
简美风格 线条感突出,利用有限的空间将美式风格所需要的元素在整个空间体现出来。即注重色彩搭配也要体现出沉稳庄重的感觉。
设计说明:
在简美风格设计特点追求的是极尽的自然,充满个性化,而且还比较自由现代,多采用纯色来进行整个房间的装修风格。
设计说明:
美式轻奢是以美式家具和轻奢饰品相呼应而带来的自由感,则让这美好的空间呈现出一副画,正如业主给设计师的感觉,低调、有气质。
设计说明:
本案例定位为简美风格,为了整体空间大小,家具主要采用套色系的柜体搭配,我们结合业主的想法及生活需要,在空间上多用些色彩这样空间上更有感觉。
设计说明:
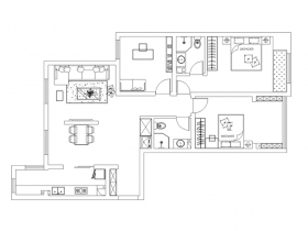
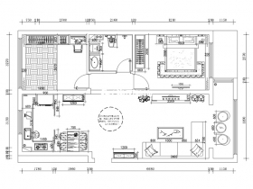
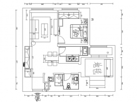
林凤装饰设计师首先充分了解整体空间布局以及面积,本方案建筑面积123平方米,2个卧室。根据业主的需求来设计整体空间。