立即预约
免费定制整装家居
一站置家 全程无忧 一省到底
当前位置: 首页 > 装修案例效果图 > 欧式,二居,71㎡ - 90㎡,户型图
设计说明:
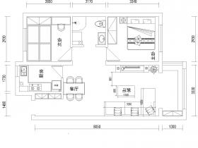
本案建筑面积85平米,根据业主需求设计了法式风格,整体以线条感为主,大量的石膏线和uv线条,突出质感和档次。富丽堂皇的装修风格,给人高端大气。
设计说明:
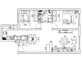
本案采用简欧风格,利用金属壁纸 倒棱镜 乳胶漆变颜色相互融合 使90平米的户型完美呈现简欧特色
设计说明:
设计说明:生活原本有形有色,何必枯燥无味。用正确的方式来生活,活在当下。
设计师整体设计理念:本案运用简欧的设计元素,表现了情怀和对生活的一种状态,一种认知。
设计说明:
业主家庭情况及要求:业主的工作比较忙,每天都过着两点一线的生活。他希望回到家后能够放松,让人心情舒畅,感到宁静和安逸,希望在纷扰的现实生活中找到平衡,缔造出一个令人心驰神往的空间。设计师整体设计理念:本案是一个两居室的房子,此户型的装修风格属于简欧风格,简欧风格就是简化的欧式风格,相较于欧式风格更为实用和多元化。本案的整体色调为白色,对应着简欧的简单而不失奢华,营造典雅、自然、高贵的气质。
设计说明:
客户要想打造一个有档次的装修而且想要欧式,由于面积过小所以推荐简约轻奢欧式,这样有效缓解了欧式的繁琐和空间压力。
设计说明:
本设计定位欧式风格,以华丽的装饰、浓烈的色彩、精美的造型达到华贵的装饰效果,运用理石,地砖的拼花,装饰石膏线等装饰材料,运用不同的欧式造型去规划每个空间的合理性,整体风格定位与客户的想法协调一致。