立即预约
免费定制整装家居
一站置家 全程无忧 一省到底
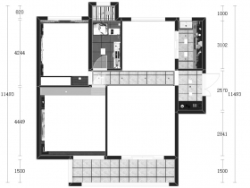
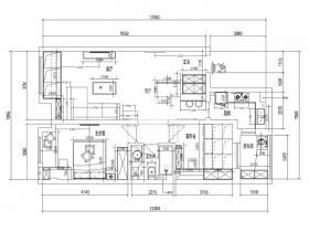
设计说明:
设计理念:现代风格,注重实用性,强调室内空间的充分使用,家具布置与空间密切配合,不添加繁琐多余的附加装饰,家具上线条简单,强调功能型设计,色彩对比强烈。现代风格是所有风格中最不拘一格表现时尚。
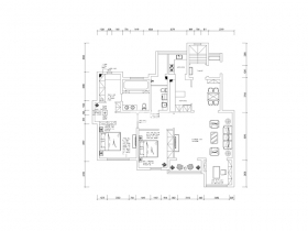
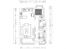
设计说明:
本案采用中式的装修风格,大气又不失典雅,追求图案上的精致,多样性的线条也可以让空间显得更有层次感。
设计说明:
一个家,一段梦,一种心境,一种生活方式,发现最美的家,过诗一般的生活。
设计说明:
本案采用中式的装修风格,大气又不失典雅,追求图案上的精致,多样性的线条也可以让空间显得更有层次感。
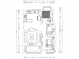
设计说明:
空间设计,不仅仅要求美观性,更多的是注重舒适性。以舒适为重点,为业主打造一个舒适的家居空间。整体以对称、简洁的手法来设计,布局对称、简洁、沉稳是中式风格的独特之处。
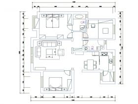
设计说明:
客户是年轻夫妻,由于男业主在日本工作,喜欢的风格很明确,想要日式风格,日式更注重细节和质感,所以对于我们的要求也高。
设计说明:
本案为中式-风格,全屋深色的胡桃色为主色调; 看着大气古典,舒适古风古韵。
设计说明:
新中式风格非常讲究空间的层次感,背景墙选用实木线条进行空间切割点缀,沙发方向背景大胆采用圆形背景配饰使得整个空间更具有设计灵动感,本案整体色调温馨典雅彰显主人高雅稳重的气质