立即预约
免费定制整装家居
一站置家 全程无忧 一省到底
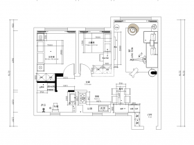
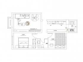
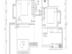
当前位置: 首页 > 装修案例效果图 > 现代简约,二居,户型图
设计说明:
本案设计整体以温馨,舒适为主导,为业主打造一个简洁、功能性强的家。
设计说明:
本案是现代简约风格,整体设计主要颜色为白灰色系,简约而不简单,采用简洁的方式来实现装修的美感,照映着我们平淡简单的美好生活。
设计说明:
一切随心,用心去感悟空间。
设计说明:
本设计采用软装配合,简单的线条,简单的组合,再加入简单的元素;发挥结构构成本身的形式美,造型简洁,运用合理的构成工艺,构成一个舒适简单的空间。
设计说明:
客户是老两口退休后的房子,准备重新翻新,本案对厨房和卫生间的布局方面进行了重新的调整,增加了老人淋浴的空间以及厨房收纳以及台面的面积,搭配暖色调的颜色搭配,布局大方,简单温馨
设计说明:
设计师整体设计理念: 因生活而设计,因设计而完美。
设计说明:
本套 87 平的现代风格住宅,整体以灰色调为主,营造出一种高雅、宁静的氛围。现代风格强调功能的实用性。空间布局依据居住者的生活习惯和实际需求进行规划,减少空间浪费。例如在客厅设计中,沙发、茶几和电视的摆放位置充分考虑人的活动线路,确保使用起来方便舒适。
设计说明:
整体空间硬装,简单干净直爽
软装温柔,质感细腻高级
软硬装相互协调,色调统一