立即预约
免费定制整装家居
一站置家 全程无忧 一省到底
当前位置: 首页 > 装修案例效果图 > 欧式,二居,91㎡ - 120㎡,户型图
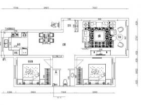
设计说明:
以肉粉色为主题的色彩,以欧式为中心设计,打造简欧得设计风格。
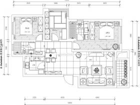
设计说明:
本案是北欧风格,提起欧式风格,大家普遍想到就是各种雕花石膏线和柱式,但本案采用的是现代理念,更偏向于简约现代的新表现,在年轻人的生活里,现代概念更贴合生活与美学的融合,这也是国内流行起来的现代北欧风格被客户所喜爱的一个方面。在设计的前期设计师也用鸟瞰图的形式,呈现了整体布局,全案考虑的做法,不同于大众设计都是一个点,一个位置的设计,容易造成装修不协调,层次不清晰和让业主迷惑的情况。
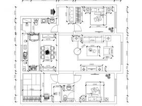
设计说明:
本案以简欧风格设计为主,在空间设计上利用欧式家具及元素符号,为客户住宅空间打造沉稳而贵气的格调。
设计说明:
本案设计以简欧风格为主,以浅色主色调,灯光采用暖色灯光,体现出简单温馨的效果。简欧风格就是简化欧式装修风格。简欧更多表现为实用性和多元化。
设计说明:
整体设计为现代简约风格,将整个空间以黑白灰色块进行各功能区的划分,在以颜色的区分范围进行吊顶的设计,是各功能区的划分更加明白清晰。
设计说明:
本案的设计风格为现代简约欧式,营造典雅、自然、高贵的气质、浪漫的情调是本案的主题。简约、质朴的设计风格是众多人群所喜爱的,生活在繁杂多变的世界里已是烦扰不休,而简单、自然的生活空间却能让人身心舒畅,感到宁静和安逸。
设计说明:
欧式风格强调以华丽的装饰,浓烈的色彩,精美的造型达到华贵的装饰效果。欧式风格顶部用大型灯池,并用华丽的吊顶营造气氛。
设计说明:
本案的风格为简欧风格,简约不等于简单,它是经过深思熟虑后经过创新得出设计和思路的延展,不是简单“堆砌”和平淡的“摆放”,不像有些设计师粗浅的理解的“直白”,比如床头背景设计有些简约到只有一个十字挂件,但是它凝结着设计师的独具匠心,既美观又实用。