立即预约
免费定制整装家居
一站置家 全程无忧 一省到底
当前位置: 首页 > 装修案例效果图 > 美式,二居,91㎡ - 120㎡,户型图
设计说明:
设计说明:人的一生,绝大部分时间是在室内度过的,因此,人们设计创造的室内环境要更加考虑一些舒适性
设计说明:
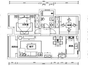
简美风格 线条感突出,利用有限的空间将美式风格所需要的元素在整个空间体现出来。即注重色彩搭配也要体现出沉稳庄重的感觉。
设计说明:
本案例定位为简美风格,为了整体空间大小,家具主要采用套色系的柜体搭配,我们结合业主的想法及生活需要,在空间上多用些色彩这样空间上更有感觉。
设计说明:
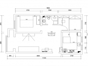
设计师在充分了解业主的对房屋功能的需求后,从新进行了整体规划,而且房屋本身是十多年的房龄,有很多地方都不适合现在功能的需求,比如储物空间比较少,厨房空间比较小等都需要改造,设计师从空间的格局到整体细节的把控,都做了整体调整,在卧室里增加衣帽间空间,增加储藏功能,把厨房空间变大,增加更多的储藏电器空间,让门厅区增加了储藏空间。
设计说明:
设计是人与环境的联系,是人类与艺术的结合
设计说明:
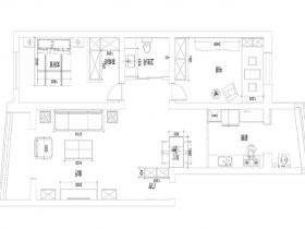
本案是以简约风格为主的设计。体设计上给人带来清爽明快之感,宽敞的空间布局让人更加舒畅,单一的色调让人就看不腻。空间布局、色彩用用、材质的选择,都突出了简约又大气的风格。
设计说明:
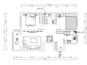
本案是两室两厅的92平的简约美式风风格,整体给人舒适,放松的感觉。其实很多时候我们都不是讲风格而是讲感觉,业主凭着自己喜欢的感觉结合设计师的专业知识,打造出自己喜欢的家。
设计说明:
在色彩上,整体暖黄色与电视背景墙的壁纸鲜明对比,提升视觉效果。材质上地砖与实木地板的搭配提高了整体档次。