立即预约
免费定制整装家居
一站置家 全程无忧 一省到底
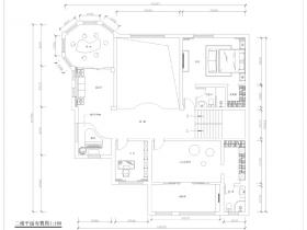
设计说明:
本案采用复古的美式风格,追求一种古旧的文化感,采用仿古艺术品作为点缀。美式风格它的造型、纹路和雕刻、线条都是构造独特风格的体现。客厅的天花设计,有着欧罗巴的奢侈与贵气,但又结合了美洲大陆这块水土的不羁,这样结合的结果是剔除了许多羁绊,但又能找寻文化根基的新的怀旧、贵气加大气而又不失自在与随意的风格。粗狂大气的家具,做旧的工艺,突显家具的古典色泽和质感的同时,时常还可以看到华丽的枫木滚边。随意而又自由的生活方式,无过多可以的雕刻与约束,成就了一种休闲时的浪漫美式风格。
设计说明:
整体设计是以美式造型,现代家具为主,整个空间设计明亮大方,没有风格的局限性。
设计说明:
本案的设计是以美式为主的设计,考虑到屋主日后生活需宁静舒适,以简洁明亮的北欧做为全屋风格。柔软无压的大地色系,使人心情感到放松。将灰色的深与浅巧妙搭配,即便没有复杂的色彩。依旧可以营造出清晰的层次感。
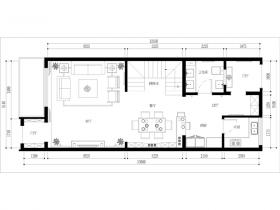
设计说明:
本案为简美风格。简美设计风格主要以简约和美式为一体!!!主要赋予一种简约大气又高贵的气息,没有反复的空间布局,每处都格外的干净利落,大方整洁,而且现代实用,整体设计上,和宽敞的空间布局都会给人耳目一新,温暖舒适的感觉。
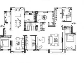
设计说明:
本方案为古典美式风格,美式风格起源于欧洲,浪漫又失怀旧 ,华丽而又高雅。家具色彩以胡桃木色为主,墙面使用经典木饰面造型配以木线条角花点缀,天花采用石膏板造型吊顶,融合辅助光源理念,主灯主要用来装饰,以筒灯和灯带来照明整个空间。
设计说明:
房主要求设计效果,创新的设计,不想跟别人家一样,大同小异,所以我根据业主的需求为他们设计了美式风格。
设计说明:
随着现代都市人对返璞归真生活的向往,越来越多人希望回到家中能够感受这份轻松的魅力。那么,相信新古典风格的装修就再适合不过了。新古典主义崇尚的是一如既往的舒适,没有复杂的割断。整个空间以大面积的落地玻璃窗为主体,在窗边开辟一个阅读空间,一个沙发、一盏地灯,在墙角装点一束鲜花或是一盆绿色植物,营造出充满人性的亲和感
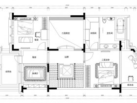
设计说明:
风格并不是很过分的强调繁复的雕刻,以舒适和多功能为主,但是同时也不失旧,浪漫的感觉