立即预约
免费定制整装家居
一站置家 全程无忧 一省到底
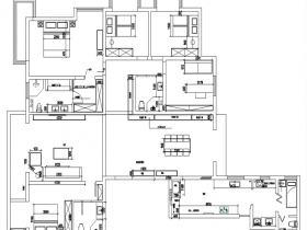
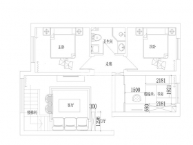
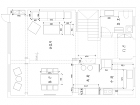
当前位置: 首页 > 装修案例效果图 > 现代简约,五居,户型图
设计说明:
设计师整体设计理念:本案以现代简约风格出发,注重空间的布局与使用功能的完美结合,发挥结构构成本身的形式美,造型简洁,搭配上舒适自然的家居布置,棕色的细节点缀让空间更加高级大气,营造出一种轻松自然的氛围。
设计说明:
本案以现代简约风格出发,注重空间的布局与使用功能的完美结合,发挥结构构成本身的形式美,造型简洁,搭配上舒适自然的家居布置,棕色的细节点缀让空间更加高级大气,营造出一种轻松自然的氛围。
设计说明:
设计师整体设计理念:本案以现代简约风格出发,注重空间的布局与使用功能的完美结合,发挥结构构成本身的形式美,造型简洁,搭配上舒适自然的家居布置,棕色的细节点缀让空间更加高级大气,营造出一种轻松自然的氛围。
设计说明:
设计师整体设计理念:本设计方案整体以现代极简为主,凸出每个空间的功能性以及实用性,要二者兼顾,所有无论空间利用还是美观上,设计师都做到精益求精。
设计说明:
设计理念:本案建筑面积240平米,结合了家里只有常驻人口3人的情况下,就没过多把外界因素纳入考虑的范围,在改户型上面也是一样,同样取舍很重要。明白是卫生间或者是衣帽间,哪个功能区域对你来说更为重要。将原始空间墙体全部打通再重组。生活空间以四大主轴贯穿,分别为客厅餐厅卧室及多功能空间。成为了LKD一体的感觉,整体力求动线流畅及视觉上开阔 。
设计说明:
在当今别墅的设计案例中,不乏奢华豪气的设计效果,但此案例的装饰手法,采用了去繁从简的现代装饰手法,空间利用留白,让整体空间看起来更透气,更加复合客户对于空间的要求。
设计说明:
后现代源于现代加黑暗色系的搭配,彰显时尚、大气并含有舒适高雅的风格
设计说明:
在空间作品构思过程中所确立的主导思想,它赋予作品文化内涵和风格特点。好的设计理念至关重要,它不仅是设计的精髓所在,而且能令作品具有个性化、专业化和与众不同的效果。