立即预约
免费定制整装家居
一站置家 全程无忧 一省到底
当前位置: 首页 > 装修案例效果图 > 新中式,五居,户型图
设计说明:
设计师整体设计理念:本案以新中式风格为主,新中式风格是融合传统和现代元素的设计风格,将中国传统文化与生活相结合,以简洁,自然,舒适为设计理念。同时也注重细节处理,让每个空间充满温馨感。
设计说明:
因生活而设计,因设计而完美。本间住宅的户主是一家两口,根据住宅本身的建筑形式,运用现代的元素,是现代偏向新中式的室内生活空间。
设计说明:
东方五千年历史的文化积淀,传承了世界惊艳的中国美。在东方禅意与现代的碰撞中合意之美生出别样中式风情。
设计说明:
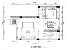
凯旋门167平平层新中式风格林凤装饰主要设计出发点主要是已中式元素融入现代的金属感结合。
设计说明:
传统与现代居室风格相结合的方式,不拘泥于单一的设计风格,色彩成熟稳重,质朴又不失典雅,韵味浓烈悠长,充分体现了中国传统之美。
设计说明:
设计师设计理念:设计为王,只有新颖的设计才会在大浪淘沙中闪烁出与众不同的光芒。
设计师整体设计说明:说出新中式的第一感觉就是红檀木,让人沉稳的气息。首先让人熟悉的就是线条屏风等等一系列有代表的东西。
设计说明:
业主家庭情况及要求: 业主是一家四口,中年夫妇呆着一儿一女,很幸福,对生活品质有些追求,所以选择做新中式风格,两口子都喜欢冷色系,要求在设计内体现出来。
设计说明:
本案房主是独立康师傅集团高管、非常喜欢新中式风格、 精华之处在于不是纯粹的元素堆砌,而是以现代人的审美需求来打造富有传统韵味的事物,让传统艺术的脉络传承下去。