立即预约
免费定制整装家居
一站置家 全程无忧 一省到底
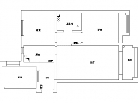
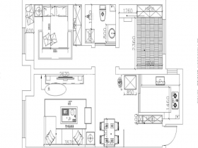
当前位置: 首页 > 装修案例效果图 > 现代简约,三居,71㎡ - 90㎡,户型图
设计说明:
本案的设计风格为现代简约风格,现代风格是一种思考方式,更是一种简洁的生活态度。深灰色沙发与浅灰色地毯的搭配使整体空间看起来更加舒适协调,本案中带有纹理的灰色背景墙与空间整体色调相辅相成。将这简洁干净、宽敞明亮、舒适协调的现代简约风格演绎的淋漓尽致。
设计说明:
本设计方案以现代风格为主,以黑白灰作为全屋主色调,提升了整个空间的时尚感觉,打造了一个与众不同的空间。
设计说明:
本案的设计以温馨为主,整体用色调来增加温馨感,让业主对未来生活充满了期待。
设计说明:
本案以现代简洁明快的温馨色调为主。首先将总体色调设计定位于明快的浅黄色,客厅地面主要以个性的暖色瓷砖,在原本平淡的空间中,又增加温馨色感,让整体空间塑造明快的氛围。
设计说明:
住房是摆在人们面前一个永久的问题。城市化的快速发展,家居装修是越来越讲究了,各式各样的装修风格呈现出来。简约黑白灰装修风格是现在很多年轻人装修的选择,没有花哨的色彩设计,也没有多余的装饰,一切都看起来那么素雅安静,黑白灰色调并不是暗沉和无趣,它营造的时尚感也是其他色调无法比拟的,现代简约风格设计定位:家是心灵的港湾。现代人面临着城市的喧嚣和污染,激烈的竞争压力,还有忙碌的工作和紧张的生活。因而,更加向往清新自然、随意的居室环境。越来越多的都市人开始摒弃繁缛豪华的装修,力求拥有一种自然简约的居室空间。
设计说明:
本案为现代风格的设计,整体简单、明亮、对比感强烈。
设计说明:
现代简约风格,简约却不简单,减少繁杂的造型,主要体现后期的配饰。本案主要靠颜色的搭配,和后期的配饰来完成整体的效果。不仅美观高,实用性更高。整体以暖和为主,整体体现出明亮,不会给人压抑感。外加明黄色的点缀,更能体现出整体的活泼,这也是本案的点睛之笔。
设计说明:
本案整体设计为现代黑白灰风格。现代氛围的设计需要追求点线面的结合,需要有种画面感,所以无论是顶面还是墙面的处理,都秉承着现代简约的设计手法。简单,利索,大气。