立即预约
免费定制整装家居
一站置家 全程无忧 一省到底
当前位置: 首页 > 装修案例效果图 > 三居,71㎡ - 90㎡,户型图
设计说明:
本案的设计风格为现代简约风格,现代风格是一种思考方式,更是一种简洁的生活态度。深灰色沙发与浅灰色地毯的搭配使整体空间看起来更加舒适协调,本案中带有纹理的灰色背景墙与空间整体色调相辅相成。将这简洁干净、宽敞明亮、舒适协调的现代简约风格演绎的淋漓尽致。
设计说明:
本设计方案以现代风格为主,以黑白灰作为全屋主色调,提升了整个空间的时尚感觉,打造了一个与众不同的空间。
设计说明:
本案的设计以温馨为主,整体用色调来增加温馨感,让业主对未来生活充满了期待。
设计说明:
本案以现代简洁明快的温馨色调为主。首先将总体色调设计定位于明快的浅黄色,客厅地面主要以个性的暖色瓷砖,在原本平淡的空间中,又增加温馨色感,让整体空间塑造明快的氛围。
设计说明:
本案装修风格定位为北欧风格,源于北欧瑞典地区,属于改进型北欧风格,融合了很多现代元素,保留了北欧风的天然材质和线条简洁性。电视背景墙墙面局部做了生态木起到拉伸效果与立面的变化,地面为冰白色地砖,搭配浅实木框架的家具。软装饰搭配纯棉,亚麻等中性色的天然材质,饰品摆件以陶器及多色玻璃。
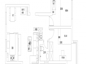
户型分析:
优点:本案例原始户型的客厅归方,开间和举架都标准,餐厅位置合理,可改建地方比较多,北进户门不靠墙,动线靠近中心线非常好。
缺点:厨房小,北卧小,厨房地热、下水和煤气管道位置不合理,造成橱柜台面太局促。 电视背景墙窄,高度与宽度尺寸比例不好。
设计说明:
客户为刚结婚的年轻人,房子是用作婚房设计主题围绕着简约的原色特点 新颖.色彩.来设计营造出温馨时尚的感觉
设计说明:
住房是摆在人们面前一个永久的问题。城市化的快速发展,家居装修是越来越讲究了,各式各样的装修风格呈现出来。简约黑白灰装修风格是现在很多年轻人装修的选择,没有花哨的色彩设计,也没有多余的装饰,一切都看起来那么素雅安静,黑白灰色调并不是暗沉和无趣,它营造的时尚感也是其他色调无法比拟的,现代简约风格设计定位:家是心灵的港湾。现代人面临着城市的喧嚣和污染,激烈的竞争压力,还有忙碌的工作和紧张的生活。因而,更加向往清新自然、随意的居室环境。越来越多的都市人开始摒弃繁缛豪华的装修,力求拥有一种自然简约的居室空间。
设计说明:
中式风格为中国建筑文化及人文文化的缩影,本案为经典中式风格,演习了中式风格中古色古香的韵味,又夹杂了现代都市时尚的装饰内容。