立即预约
免费定制整装家居
一站置家 全程无忧 一省到底
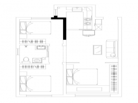
当前位置: 首页 > 装修案例效果图 > 现代简约,71㎡ - 90㎡,户型图
设计说明:
本案设计整体以温馨,舒适为主导,为业主打造一个简洁、功能性强的家。
设计说明:
本案是现代简约风格,整体设计主要颜色为白灰色系,简约而不简单,采用简洁的方式来实现装修的美感,照映着我们平淡简单的美好生活。
设计说明:
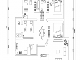
本套 87 平的现代风格住宅,整体以灰色调为主,营造出一种高雅、宁静的氛围。现代风格强调功能的实用性。空间布局依据居住者的生活习惯和实际需求进行规划,减少空间浪费。例如在客厅设计中,沙发、茶几和电视的摆放位置充分考虑人的活动线路,确保使用起来方便舒适。
设计说明:
设计师整体设计理念:经过前期和客户的沟通,营造出舒适,自然,轻松的居住环境,以满足客户的舒适体验和实际需求为核心,合理规划空间布局和功能设置
设计说明:
设计说明:既有现代极简嗯空间感,质感细腻且高级温柔,素雅高级。
设计说明:
设计说明:现代简约风格主要是在建筑上提倡简约,将设计的元素、色彩、照明、原材料简化到最少的程度,但对色彩、材料的质感要求很高。同时强调空间的功能性,反对多余装饰。现代简约风格以简洁的视觉效果营造出时尚前卫的感觉,满足人们对生活品位和身体健康的需求,体现出合理节约的科学消费观,反映出当代社会摆脱繁琐、复杂追求简单和自然的心理。
设计说明:
设计师整体设计理念:本案设计风格以现代简约风格为主,整体设计以黑白灰为主,深浅色系搭配,空间协调统一。
设计说明:
设计理念: 本案主要以现代风格融入原木元素设计,不失原木的儒雅,是婚房住房,突出现代和原木风格的融合。