立即预约
免费定制整装家居
一站置家 全程无忧 一省到底
当前位置: 首页 > 装修案例效果图 > 现代简约,70㎡以下,户型图
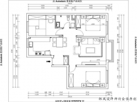
设计说明:
本案设计整体以温馨,舒适为主导,为业主打造一个简洁、功能性强的家。
设计说明:
轻奢是一种表现技法,用于表达对精神生活的本质上的追求,呈现出富足生活的享受,在对于土豪形式、极度奢华等繁琐复杂的生活形式的摒弃之余,人对于贵族生活的向往。用这样的技法表达都市新贵族的身份与品位。
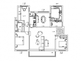
设计说明:
业主为年轻男女朋友,用作婚房。常住两口,备用儿童房,老人房
设计说明:
本案采用现代风格,大量运用轻奢元素,给人时尚、前卫、优雅,并且还会有温馨舒适的感觉
设计说明:
业主为年轻男女朋友,用作婚房,整体为现代黑白灰色调为主,使人感受年轻的气态。
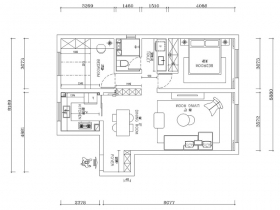
设计说明:
美式简约主义是美式古典风格的延续,从1830年美国工业时代的延续和现代的结合演变出一种风格,即现代美式。
设计说明:
简约并不代表简单,干净利落是本案的代名词,轻装修重装饰的设计理念贯穿全局,通过软装色彩、灯光、配饰进行整体搭配。
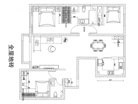
设计说明:
本案例现代风格,不想要太多复杂的造型,想要空间最大化,不要纷繁冗杂的设计,在简单的搭配上体现出一些奢华感,入眼干净简洁。