立即预约 立即预约
免费定制整装家居

免费定制整装家居

一站置家 全程无忧 一省到底
hide.png

当前位置: 首页 > 装修案例效果图 > 府城铭邸

府城铭邸 87平 现代简约风格效果图

收藏
案例风格 现代简约 案例户型 二居 案例面积 87平米
楼盘名称 府城铭邸 设计师 林凤装饰设计师 案例类型 婚房

设计理念:本案是以现代风格的设计为主。居家生活的质感不是靠物质的华丽堆砌,而是借由适宜的光线、材质元素以及经过慎密计算的生活动线,交织成凌驾于奢华之上的纯粹放松。白色的彰显与灰色的内敛,搭配上低饱和度的胡桃木皮,在空间中产生对话。立体的线条,现代减法设计,使空间扩大化,达到舒适合理化。

客厅
第1张
第2张
第3张
第4张
第5张
餐厅
第1张
卧室
第1张
卫生间
第1张
厨房
第1张
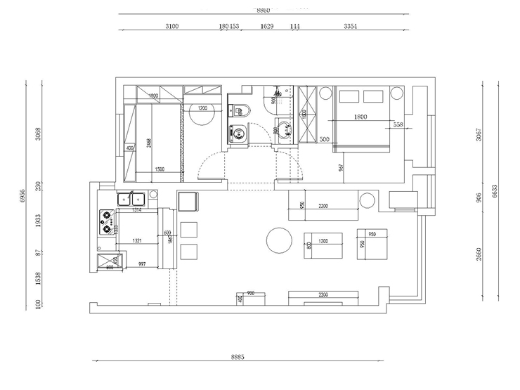
户型图
第1张
  • 案例详情

府城铭邸-87平-现代风格-客厅.jpg 府城铭邸-87平-现代风格-客厅2.jpg 府城铭邸-87平-现代风格-电视背景.jpg 府城铭邸-87平-现代风格-首图.jpg 府城铭邸-87平-现代风格-沙发背景.jpg

客厅两侧直线边棚,使空间有拉伸感,白色墙面灰色的沙发体现现代感,减法的设计使空间扩大化,更加舒适。客厅的天花板,背景墙、地面都未经过太多的修饰,保持中灰色调不夺视线。而对于窗户的处理,本身大面积的窗户采光即是好的。

府城铭邸-87平-现代风格-餐厅.jpg

餐厅的设计没有用传统的餐桌来设计,而是在开放式厨房的空间一侧设计吧台的形式,而使空间增大,彰显现代年轻人的时尚感。而且在厨房设计了敞开式,房主在做饭的时候,孩子还可以在桌子上面写作业。让整个空间在互动上也增添了不少乐趣。

府城铭邸-87平-现代风格-卧室.jpg

灰蓝色的床头背景,宽的大棚角线使原本空间小的卧室增大了高度感,原木色的床和其他部分的设计呼应起来。

府城铭邸-87平-现代风格-卫生间.jpg

灰色的墙砖,黑色的浴屏框体,配加原木色的洗漱柜,使卫生间时尚感很强。整个格局的摆放也凸显的尤为重要,浴屏的设计让实际使用来说更加的方便,快捷。

府城铭邸-87平-现代风格-厨房.jpg

厨房墙面砖选暖色的,黑白吸塑门板设计更加体现层次感,开放式的厨房使空间明亮另外增大了橱柜的收纳空间。

府城铭邸-87平-现代风格-平面图.jpg

案例设计师

林凤装饰设计师

设计师:林凤装饰设计师

从业时间:10年

设计理念:感受生活品质,设计空间生活。

预约设计师

算算你家装修多少钱

报名即享丰厚赠品,享半价装修

免费报价
咨询热线:400-656-9909
20190221103704574636.jpg

精品设计案例

20180612134930523248.jpg 服务号二维码.jpg