立即预约 立即预约
免费定制整装家居

免费定制整装家居

一站置家 全程无忧 一省到底
hide.png

当前位置: 首页 > 装修案例效果图 > 华润橡树湾

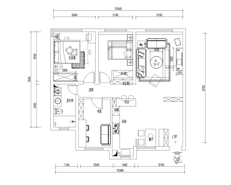
华润橡树湾 124平 北欧风格效果图

收藏
案例风格 北欧 案例户型 三居 案例面积 124平米
楼盘名称 华润橡树湾 设计师 高阳 案例类型 改善性住宅

设计理念:本案以北欧风格为主题的设计,北欧风格能以现代、简洁、自然的特点俘获人心,所营造出来的生活氛围会让人倍感舒适与自在。

客厅
第1张
第2张
第3张
第4张
餐厅
第1张
卧室
第1张
卫生间
第1张
厨房
第1张
门厅
第1张
第2张
户型图
第1张
  • 案例详情

华润橡树湾-124平米-背景墙.jpg 华润橡树湾-124平米-客厅.jpg 华润橡树湾-124平米-客厅1.jpg 华润橡树湾-124平米-首图客厅.jpg

客厅的家具采用的舒适的布艺沙发,体现了北欧风格的惬意,木质的家具,蓝色墙面点缀,砖墙的呼应,铁艺的衬托。都在告诉大家这就是北欧。

华润橡树湾-124平米-餐厅.jpg

餐厅的设计加入卡座的元素,让生活更加有趣味性。同时也增加的储物空间。

华润橡树湾-124平米-卧室.jpg

卧室的装饰格调,在大体的颜色上未作明显改变,整体风格统一,木质的颜色和白色的搭配显得年轻时尚。

华润橡树湾-124平米-卫生间.jpg

风格的贯穿,白色的墙砖,灰色的地面,木质的洗漱台,都完美诠释的北欧风格的真谛。

华润橡树湾-124平米-厨房.jpg

厨房的设计上也是有变化的,可以是开放式厨房,也可以是封闭式厨房。拉门和吧台完美的结合。这只有北欧风格适合这种方案。

华润橡树湾-124平米-门厅.jpg 华润橡树湾-124平米-门厅1.jpg 平面图.jpg

案例设计师

高阳

设计师:高阳

从业时间:11年

设计理念:有限空间、无限设计。

预约设计师

算算你家装修多少钱

报名即享丰厚赠品,享半价装修

免费报价
咨询热线:400-656-9909
20190221103704574636.jpg

精品设计案例

20180612134930523248.jpg 服务号二维码.jpg