立即预约 立即预约
免费定制整装家居

免费定制整装家居

一站置家 全程无忧 一省到底
hide.png

当前位置: 首页 > 装修案例效果图 > 富禹盛京学府

富禹盛京学府 113平 混搭风格效果图

收藏
案例风格 混搭 案例户型 三居 案例面积 113平米
楼盘名称 富禹盛京学府 设计师 林凤设计师 案例类型 改善性住宅

设计理念:本案业主为年轻时尚小两口,所以我们考虑到未来想要给未来宝宝一个温馨舒适的一个房间,所以本案整体采用现代风格的手法,运用颜色,来打造整体空间的设计感及时尚感

客厅
第1张
第2张
第3张
餐厅
第1张
第2张
卧室
第1张
第2张
卫生间
第1张
厨房
第1张
门厅
第1张
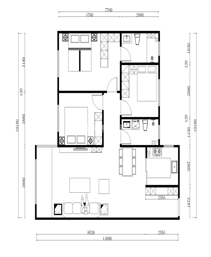
户型图
第1张
  • 案例详情

富禹盛京学府-113㎡-现代混搭-客厅.jpg 富禹盛京学府-113㎡-现代混搭-客厅1.jpg 富禹盛京学府-113㎡-现代混搭-客厅2.jpg

富禹盛京学府113平三室两厅现代混搭风格林凤装饰的客厅整体以白色,木质本色,整体颜色的大基调,电视背景墙我们深灰色石膏造型结合灯带设计,定制地台柜及定制电视柜

富禹盛京学府-113㎡-现代混搭-餐厅.jpg 富禹盛京学府-113㎡-现代混搭-餐厅1.jpg

富禹盛京学府113平三室两厅现代混搭风格林凤装饰的餐厅采用成品家具,搭配皮质餐椅,凸显餐厅设计

富禹盛京学府-113㎡-现代混搭-次卧室.jpg 富禹盛京学府-113㎡-现代混搭-卧室.jpg

富禹盛京学府113平三室两厅现代混搭风格林凤装饰的卧室墙面我们选择深蓝色墙面,作为卧室空间突出重点

富禹盛京学府-113㎡-现代混搭-卫生间.jpg

富禹盛京学府113平三室两厅现代混搭风格林凤装饰的卫生间定制的手盆,浅灰色的墙砖,改造成干湿分离,提升整体功能

富禹盛京学府-113㎡-现代混搭-厨房.jpg

富禹盛京学府113平三室两厅现代混搭风格林凤装饰的U型厨房,采用双饰面材质,尽可能的让厨房增加储物的功能

富禹盛京学府-113㎡-现代混搭-门厅.jpg

富禹盛京学府113平三室两厅现代混搭风格林凤装饰的玄关

富禹盛京学府-113㎡-现代混搭-平面图.jpg

户型图

案例设计师

林凤设计师

设计师:林凤设计师

从业时间:7年

设计理念:人为生活而设计,设计为生活而存在。

预约设计师

算算你家装修多少钱

报名即享丰厚赠品,品质装修

免费报价
咨询热线:400-656-9909
20190221103704574636.jpg

精品设计案例

20180612134930523248.jpg 服务号二维码.jpg