立即预约 立即预约
免费定制整装家居

免费定制整装家居

一站置家 全程无忧 一省到底
hide.png

当前位置: 首页 > 装修案例效果图 > 金地樾檀山

金地樾檀山 89平 现代简约风格效果图

收藏
案例风格 现代简约 案例户型 二居 案例面积 89平米
楼盘名称 金地樾檀山 设计师 林凤装饰设计师 案例类型 婚房

设计理念:本案装饰材料多采用已:布艺,烤漆玻璃,乳胶漆,等搭配。给空间后期体现出简洁、经济、实用、舒适的同时,也体现出一定的个性品味。

客厅
第1张
第2张
第3张
第4张
餐厅
第1张
卧室
第1张
卫生间
第1张
厨房
第1张
门厅
第1张
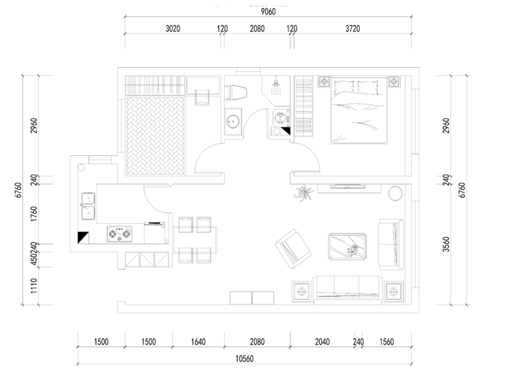
户型图
第1张
  • 案例详情

金地樾檀山-89平-现代风格-客厅 (1).jpg 金地樾檀山-89平-现代风格-客厅 (3).jpg 金地樾檀山-89平-现代风格-客厅 (2).jpg 金地樾檀山-89平-现代风格-客厅 (4).jpg

客厅的设计主题色已墙面的浅灰色乳胶漆搭配着浅白木地板为主色调,浅灰给人一种个性十足的感觉,电视背景墙稍带些咖色的壁纸,把室内整体的黑白灰色系体现的不是那么的生冷。

金地樾檀山-89平-现代风格-厨房.jpg

餐厅处墙面巧妙的运用和电视背景墙的烤漆及壁纸一致,使得空间感各加协调统一,利用几幅挂牌把平衡关系找好。利用隔板上的装饰物把餐厅体现的别致品味。

金地樾檀山-89平-现代风格-主卧室.jpg

床头背景运用了硬包的皮革布及烤漆玻璃搭配,体现出高贵而时尚。白色的床品给人一种简洁而又文雅的感觉。

金地樾檀山-89平-现代风格-卫生间.jpg

卫生间黑白色墙地砖层次分明的搭配,坐便后点缀了几条花片,让卫生间里有了别致的感觉。

金地樾檀山-89平-现代风格-厨房.jpg

厨房空间合理化的利用,让后期的生活各加便捷实用。黑色的橱柜搭配白色的墙砖,和室内黑白灰色系的相互呼应更加整体自然。

金地樾檀山-89平-现代风格-玄关.jpg 金地樾檀山-89平-现代风格-平面图.jpg

案例设计师

林凤装饰设计师

设计师:林凤装饰设计师

从业时间:10年

设计理念:合理划分空间,让设计融入生活,营造自然、品味、格调。

预约设计师

算算你家装修多少钱

报名即享丰厚赠品,享半价装修

免费报价
咨询热线:400-656-9909
20190221103704574636.jpg

精品设计案例

20180612134930523248.jpg 服务号二维码.jpg