立即预约 立即预约
免费定制整装家居

免费定制整装家居

一站置家 全程无忧 一省到底
hide.png

当前位置: 首页 > 装修案例效果图 > 鲁班尚品

鲁班尚品 98平 北欧风格效果图

收藏
案例风格 北欧 案例户型 二居 案例面积 98平米
楼盘名称 鲁班尚品 设计师 林凤设计师 案例类型 婚房

设计理念:简美风格的特色是将设计的元素、色彩、照明、原材料简化到最少的程度。但是对材料的色彩质感要求很高。因此,简约的空间设计非常含蓄,往往能起到以少胜多,以简胜繁的效果。艺术创意宜简不宜繁,宜藏不宜显(齐白石语),这些都是对简洁最精辟的阐述。简约的美式风格,一般称为简美,少了雕花多了现代元素。

客厅
第1张
第2张
第3张
餐厅
第1张
卧室
第1张
卫生间
第1张
厨房
第1张
过廊
第1张
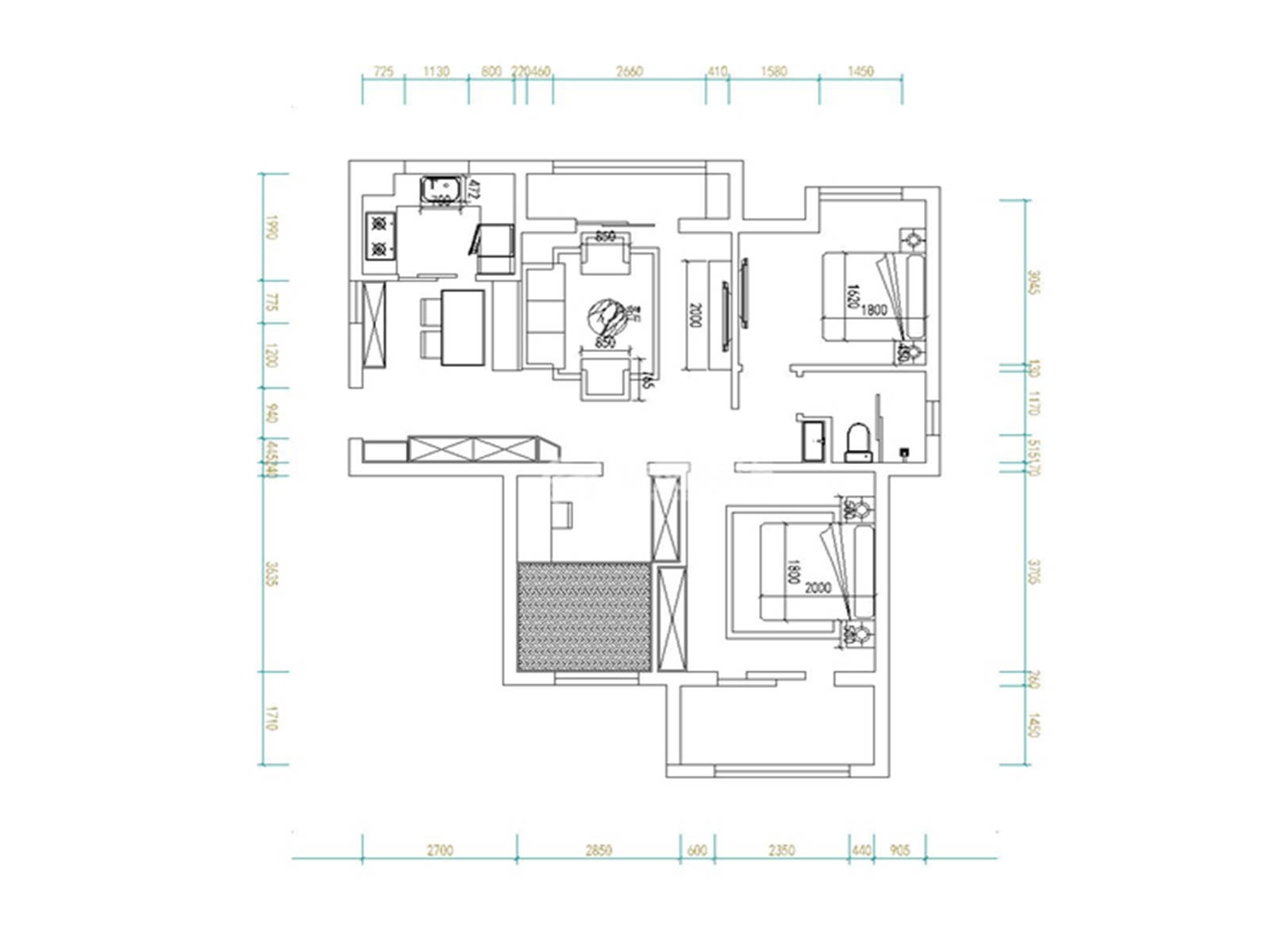
户型图
第1张
  • 案例详情

鲁班尚品-北欧风格-98-电视墙.jpg 鲁班尚品-北欧风格-98-首图.jpg 鲁班尚品-北欧风格-98-客厅2.jpg

整个客厅以简单温馨的绿色为主,背景墙采用绿黄色的壁纸,沙发后边是餐厅的卡座,搭配上舒适精致的布艺沙发和单人沙发,显得随意而舒适。

鲁班尚品-北欧风格-98-餐厅.jpg

餐厅位于客厅的一侧,中间用棚顶造型用来划分客厅餐厅的区域,餐桌采用木色桌椅感觉舒适温馨。

鲁班尚品-北欧风格-98-卧室.jpg

卧室采用浅灰色的主色调,整个空间简单简洁。

鲁班尚品-北欧风格-98-卫生间.jpg

卫生间白色墙砖黑色地砖简单干净

鲁班尚品-北欧风格-98-厨房.jpg

厨房墙砖偏暖色的颜色,地砖采用灰色仿古砖配象牙白美缝,让这个空间相互呼应,厨房采用U型橱柜丰富的利用了整个空间,采用的黑色推拉门,用推拉门让整个空间显得更宽敞明亮,同时还防止了油烟的问题。

鲁班尚品-北欧风格-98-过廊.jpg 鲁班尚品-北欧风格-98-平面图.jpg

案例设计师

林凤设计师

设计师:林凤设计师

从业时间:0年

设计理念:

预约设计师

算算你家装修多少钱

报名即享丰厚赠品,品质装修

免费报价
咨询热线:400-656-9909
20190221103704574636.jpg

精品设计案例

20180612134930523248.jpg 服务号二维码.jpg