立即预约 立即预约
免费定制整装家居

免费定制整装家居

一站置家 全程无忧 一省到底
hide.png

当前位置: 首页 > 装修案例效果图 > 金辉优步湖畔

金辉优步湖畔 128平 轻奢风格效果图

收藏
案例风格 轻奢 案例户型 四居 案例面积 128平米
楼盘名称 金辉优步湖畔 设计师 林凤设计师 案例类型 改善性住宅

设计理念:本方案以现代轻奢的风格为主题,运用理石造型和硬包造型进行色彩调配,让屋内显得格外的奢华低调,屋内功能性全面,空间功能性最大化。

客厅
第1张
第2张
第3张
第4张
餐厅
第1张
第2张
卧室
第1张
卫生间
第1张
厨房
第1张
儿童房
第1张
过廊
第1张
第2张
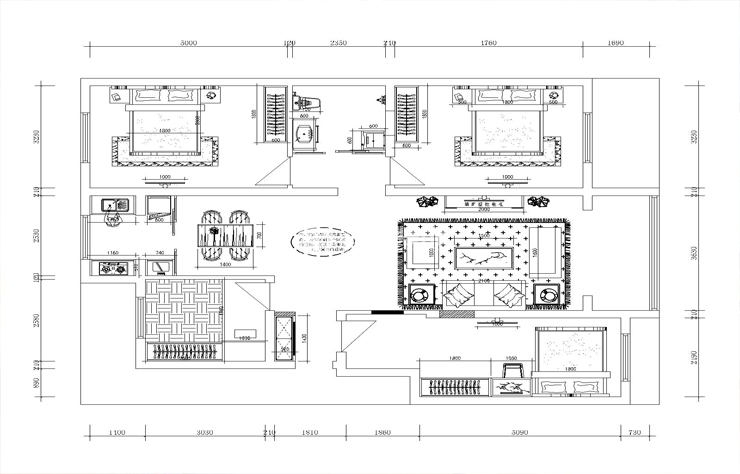
户型图
第1张
  • 案例详情

金辉优步湖畔-128平-现代轻奢风格-客厅1.jpg 金辉优步湖畔-128平-现代轻奢风格-客厅.jpg 金辉优步湖畔-128平-现代轻奢风格-沙发背景墙.jpg 金辉优步湖畔-128平-现代轻奢风格-电视背景墙.jpg

原有的客卧门正好占用了电视背景墙的位置,所以吧原始的门洞用红砖砌筑,在过廊处开新的门洞这样电视背景墙和沙发背景墙更好的结合到了一起。

金辉优步湖畔-128平-现代轻奢风格-餐厅.jpg 金辉优步湖畔-128平-现代轻奢风格-餐厅1.jpg

餐厅的整体格局做了很大的调整,原有的餐厅区只能放在过道上,对于一个128㎡的房子来说这是个非常不合理的建筑设计,所以针对这个户型把座了相应的调整。

金辉优步湖畔-128平-现代轻奢风格-主卧室.jpg

卧室的衣柜采用的是橡木饰面板,卧室的墙面采用的是实木护墙板。地面采用的是木地板,让人感到一种很温馨的感觉,很温馨的家。

金辉优步湖畔-128平-现代轻奢风格-卫生间.jpg

卫生间采用了洗手盆与墙排坐便一体,既节省了空间,卫生间空间无形加大。简洁的仿古砖和大理石的搭配,显得空间不会那么局促。

金辉优步湖畔-128平-现代轻奢风格-厨房.jpg

餐厅的调整,厨房的缩小,功能性来说小了一些,但是房主的工作和夜生活时间会多过于在家的时间,所以厨房缩小只用于西餐用。

金辉优步湖畔-128平-现代轻奢风格-女儿房.jpg 金辉优步湖畔-128平-现代轻奢风格-过廊.jpg 金辉优步湖畔-128平-现代轻奢风格-过廊2.jpg 金辉优步湖畔-128平-现代轻奢风格-平面图.jpg

案例设计师

林凤设计师

设计师:林凤设计师

从业时间:9年

设计理念:想客户之所想,急客户之所急,永远吧客户的利益放在自己的利益之上。

预约设计师

算算你家装修多少钱

报名即享丰厚赠品,享半价装修

免费报价
咨询热线:400-656-9909
20190221103704574636.jpg

精品设计案例

20180612134930523248.jpg 服务号二维码.jpg