立即预约 立即预约
免费定制整装家居

免费定制整装家居

一站置家 全程无忧 一省到底
hide.png

当前位置: 首页 > 装修案例效果图 > 沈阳客厅

沈阳客厅 140平 现代简约风格效果图

收藏
案例风格 现代简约 案例户型 三居 案例面积 140平米
楼盘名称 沈阳客厅 设计师 林凤设计师 案例类型 改善性住宅

设计理念:本案例合理的空间规划,把原始户外的面积全部扩到室内,是整个空间多一些用途,多出一些空间利用。做出有品位的家。

客厅
第1张
餐厅
第1张
第2张
卧室
第1张
第2张
卫生间
第1张
第2张
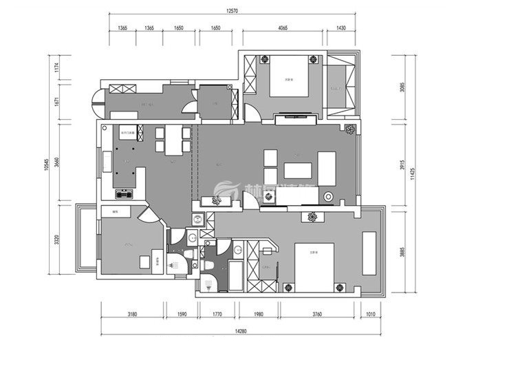
户型图
第1张
  • 案例详情

沈阳客厅-140平-现代风格-客厅1.jpg

客厅没做花哨的吊棚处理方式,简单的抽缝处理使客厅能悦动起来,顶部颜色的运用使大空间分割出来。

沈阳客厅-140平-现代风格-餐厅.jpg 沈阳客厅-140平-现代风格-客厅及餐厅.jpg

墙面没做造型处理,就是简单运用了一幅画来增加餐厅的质感,餐桌,酒柜结合看起来特别融洽。

沈阳客厅-140平-现代风格-次卧室.jpg 沈阳客厅-140平-现代风格-主卧室.jpg

卧室运用有些台式风格电视剧的风格元素,多了一些色彩,文化,床头背景上的装饰小件,使整个墙面不在孤独。

沈阳客厅-140平-现代风格-次卫生间-进门过廊.jpg 沈阳客厅-140平-现代风格-主卫生间.jpg

简单实用美观,主卫生间运用黑白色系皮纹砖墙地砖的铺设使空间不会显得那么传统,多了一些质感。次卫生间,做的比较简单,运用浅色的花纹墙地砖,空间虽小但是也能体现精致。

沈阳客厅-140平-现代风格-平面图.jpg

案例设计师

林凤设计师

设计师:林凤设计师

从业时间:10年

设计理念:一个愉悦的空间、一种尊贵的生活、一方独享的天地,都在这里寻求最合适的表达。

预约设计师

算算你家装修多少钱

报名即享丰厚赠品,享半价装修

免费报价
咨询热线:400-656-9909
20190221103704574636.jpg

精品设计案例

20180612134930523248.jpg 服务号二维码.jpg