立即预约 立即预约
免费定制整装家居

免费定制整装家居

一站置家 全程无忧 一省到底
hide.png

当前位置: 首页 > 装修案例效果图 > 碧桂园公园里

碧桂园公园里 145平 轻奢风格效果图

收藏
案例风格 轻奢 案例户型 四居 案例面积 145平米
楼盘名称 碧桂园公园里 设计师 林凤装饰全案设计师 案例类型 改善性住宅

设计理念:本案是比较主流的低调奢华的轻奢风格,用大面的壁布做基调,通过墙面一些主饰面墙体划分区域和衔接区域,用硬朗的钢条做元素边框,再通过冷暖灯光的调节和水蓝色的软装配饰点缀提艳空间色彩。

客厅
第1张
第2张
第3张
餐厅
第1张
卧室
第1张
卫生间
第1张
厨房
第1张
第2张
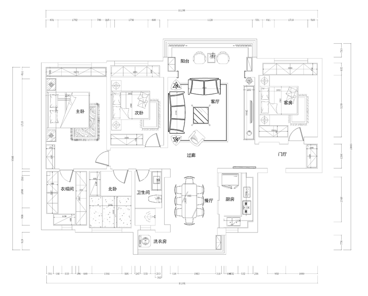
户型图
第1张
  • 案例详情

碧桂园公园里-145平-轻奢风格-客厅1.jpg 碧桂园公园里-145平-轻奢风格-客厅2.jpg 碧桂园公园里-145平-轻奢风格-客厅3.jpg

本案的客厅吊棚采用圈棚叠级造型,将走廊融为到会客区得以扩大,再用钛金钢条做元素的边框收边,夹着素面的浅棕色硬包造型,电视墙使用天然爵士白大理石做背景墙,为了达到精致的效果,所以没有做满墙理石,而是两侧用钛金钢条镶嵌做呼应元素

碧桂园公园里-145平-轻奢风格-餐厅.jpg

本案的餐厅是副区,呼应主会客区的效果,所以用客厅形式一样的钛金钢条收边,中间铺素面浅棕色硬包,其他墙面是室内的基础颜色灰色素纹壁布。

碧桂园公园里-145平-轻奢风格-卧室.jpg

卧室采用了吊棚划分区域的效果,在走廊的上方用平棚分割区域,走廊的顶端摆放装饰柜做空间的填充,床头用风格主元素的钛金钢条做边框,夹硬包造型做背景墙。

碧桂园公园里-145平-轻奢风格-卫生间.jpg

本案中的两个卫生间依据个人需求,只保留了一个,另外一个做成了衣帽间增大了储物空间和功能,使用的卫生间采用灰色地砖上墙的方式铺贴,中间用深浅搭配的腰线做装饰点缀,在淋浴区用方格马赛克的造型做卫生间的淋浴区主墙面。

碧桂园公园里-145平-轻奢风格-厨房1.jpg 碧桂园公园里-145平-轻奢风格-厨房2.jpg

厨房是一个半开放式形式,为了达到色彩的统一性,采用灰色理石纹理的地砖上墙铺贴,橱柜使用浅色的象牙白来做亮丽色,再通过黑色烤漆面的冰箱门使厨房的色彩和风格达到整个方案的统一和协调。

碧桂园公园里-145平-轻奢风格-平面图.jpg

案例设计师

林凤装饰全案设计师

设计师:林凤装饰全案设计师

从业时间:13年

设计理念:设计:是一种追求完美的生活态度,是一种追求品味的生活

预约设计师

算算你家装修多少钱

报名即享丰厚赠品,享半价装修

免费报价
咨询热线:400-656-9909
20190221103704574636.jpg

精品设计案例

20180612134930523248.jpg 服务号二维码.jpg