立即预约 立即预约
免费定制整装家居

免费定制整装家居

一站置家 全程无忧 一省到底
hide.png

当前位置: 首页 > 装修案例效果图 > 金地铁西檀府

金地铁西檀府 108平 新中式风格效果图

收藏
案例风格 新中式 案例户型 一居 案例面积 108平米
楼盘名称 金地铁西檀府 设计师 林凤设计师 案例类型 儿童房

设计理念:本案业主对平面空间规划相当重视,喜欢明显的区域分隔,风格希望尽量简洁,提倡空间简洁明了,同时略带一丝韵味,设计师打破了传统新中式风格,通过对空间、功能的合理分配,通过简约并略带现代感的金属线条,黑、白、咖等几种典雅的经典配色,还原家居生活的本质——修养身心。

客厅
第1张
第2张
第3张
餐厅
第1张
第2张
卧室
第1张
卫生间
第1张
厨房
第1张
门厅
第1张
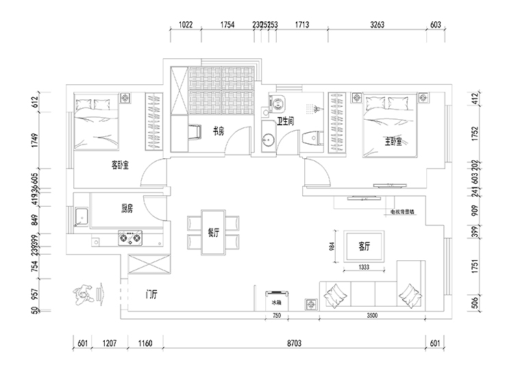
户型图
第1张
  • 案例详情

金地铁西檀府-108平米-新中式风格-客厅02.jpg 金地铁西檀府-108平米-新中式风格-客厅01.jpg 金地铁西檀府-108平米-新中式风格-客厅03.jpg

客厅是接待客人与家庭娱乐的主要空间,灰色系的抛釉砖是今年的流行色,搭配新中式的家具,给人一种稳重、大气的感觉,背景墙金属条搭配软包造型,提高档次的同时也增加了现代感。整个空间咖色系的壁纸,使整个空间不那么生硬,让主人感觉心灵的舒适与温馨。

金地铁西檀府-108平米-新中式风格-餐厅01.jpg 金地铁西檀府-108平米-新中式风格-餐厅02.jpg

宽敞的餐厅与客厅空间形成一个整体,二者充分的互相呼应。餐厅的间隔柜是整个空间的一个小亮点,装饰的同时又做到了与过廊空间的分隔。

金地铁西檀府-108平米-新中式风格-卧室.jpg

小男孩的房间不大,设计了榻榻米,书桌、书柜与榻榻米形成一个整体,简洁、利落,同时收纳性十足。

金地铁西檀府-108平米-新中式风格-卫生间.jpg

简约的卫生间设计,给人干净明亮的感觉。在条件允许的前提下,干湿分离也是一种不错的选择。

金地铁西檀府-108平米-新中式风格-厨房.jpg

白色橱柜搭配白色的墙地砖,令人感觉干净、舒心,让在厨房使用的人心情非常愉快。

金地铁西檀府-108平米-新中式风格-门厅.jpg 金地铁西檀府-108平米-新中式风格-平面布置图.jpg

案例设计师

林凤设计师

设计师:林凤设计师

从业时间:5年

设计理念:设计不但要有整体性,更要突出实用性和舒适度,注重人体工程学。简单、实用、美观才是王道!

预约设计师

算算你家装修多少钱

报名即享丰厚赠品,品质装修

免费报价
咨询热线:400-656-9909
20190221103704574636.jpg

精品设计案例

20180612134930523248.jpg 服务号二维码.jpg