立即预约
免费定制整装家居
一站置家 全程无忧 一省到底
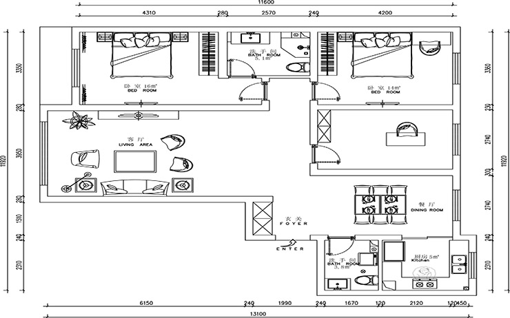
设计理念:本案是新中式风格的设计,白色大理石得背景墙,木纹条收边显得高端大气。地面采用今年流行的灰色地砖做铺垫,给人一种庄重又不失时尚的感觉。地拼用黑色卡其色颜色收边,给空间增添了层次感。随着时代的变迁,各种元素与中国文化相碰撞,衍生出了新中式,相比古典中式而言,新中式更偏向于现代。
案例详情
客厅的家具颜色是黑胡桃木色,这种颜色的家具给人感觉特别雅致。电视背景墙则采用白色大理石做背景,和家具在色彩上形成对比,调节了空间的沉闷感。沙发背景则选用了浅蓝色壁纸,成为了客厅的一大亮点。同时沙发上的抱枕采用了蓝色和黄色做为客厅的点缀色,给空间增添了许多活跃的气氛。
餐桌融合了后现代的元素,金属的桌子腿给房间增加了时尚感。餐厅的背景墙也采用了大理石,与客厅形成呼应。背景墙的配画和桌子上的花都是黄色调,整体感觉非常温馨,舒适。
两个卧室都采用米色壁纸作为基调,给人一种幽雅静谧的感觉。让人回到家里感到舒适放松。电视柜选用了矮柜,既满足了收纳的需求还满足了室内的装饰。不会让卧室太空旷。
卫生间的墙砖与地砖采用了一种材质,这样看上去协调性更好,同时也很美观。浴屏和浴缸采用了透明玻璃隔断隔开,使空间干净利落又不会有沉闷感。马桶上方选了一幅比
厨房采用了灰色地砖和深灰色美缝剂配,总体看上去质感自然。厨房橱柜材质运用了胡桃木色,看上次会特别有档次。橱柜材质和墙砖颜色的搭配上,白色的瓷砖里夹杂着黄色的纹理,与胡桃色橱柜搭配不会显得惟妙惟肖。
精品设计案例
设计说明:
三室两厅一厨两卫,高层整体采用美式风格,色调以深色为主,体现美式的居家感和温馨感。
设计说明:
本案业主为年轻时尚小两口,所以我们考虑到未来想要给未来宝宝一个温馨舒适的一个房间,所以本案整体采用现代风格的手法,运用颜色,来打造整体空间的设计感及时尚感
设计说明:
本案以北欧风格为主题的设计,北欧风格能以现代、简洁、自然的特点俘获人心,所营造出来的生活氛围会让人倍感舒适与自在。
设计说明:
客户是一名成功人士,对于家的执念就是简单干净,客户衣服比较多,所以把每个空间都做了大衣柜,并且融入到设计里