立即预约 立即预约
免费定制整装家居

免费定制整装家居

一站置家 全程无忧 一省到底
hide.png

当前位置: 首页 > 装修案例效果图 > 华润二十四城

华润二十四城 86平 北欧风格效果图

收藏
案例风格 北欧 案例户型 二居 案例面积 86平米
楼盘名称 华润二十四城 设计师 邵丹 案例类型 婚房

设计理念:随着大众对审美观念的转变,现代化家居偏向于简约化,人性化的方向发展,,最具代表性的装修就是北欧风格.它能自在,简洁,清新,自然的特点俘虏人心,,所营造出来的氛围会让人倍感舒适与自在.

客厅
第1张
第2张
餐厅
第1张
卧室
第1张
第2张
卫生间
第1张
厨房
第1张
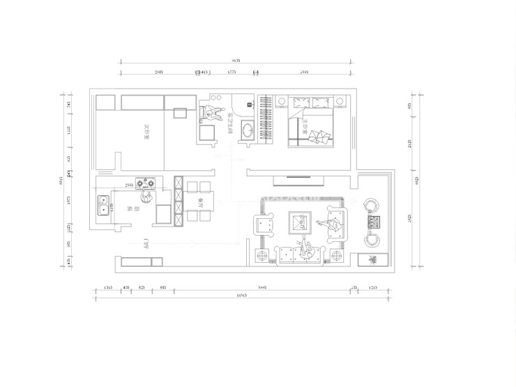
户型图
第1张
  • 案例详情

华润二十四城-86平-北欧风格-客厅.jpg 华润二十四城-86平-北欧风格-客厅 (3).jpg

北欧喜欢用木色来装点环境,如客厅深浅过渡色的地板,适量的进行搭配融合已在大限度的呈现洁净而舒适的环境氛围,粉色的电视背景墙,灰色的沙发背景墙,深浅融合,更具浪漫与舒适。

华润二十四城-86平-北欧风格-餐厅 (2).jpg

餐厅面积不大,却起到了分割的作用,整整齐齐以木色和白色为主,张显着简洁之感,原木色餐桌带有四把时尚餐椅,充满现代生活的品味。

华润二十四城-86平-北欧风格-卧室 (2).jpg 华润二十四城-86平-北欧风格-卧室.jpg

卧室的床头背景墙选用黄色来修饰,其他选择白色墙面,两者相接既有颜色的对比之美又为空间带来层次之感,灰色的床品和灰色的窗帘搭配,两幅抽象画的点缀,不仅装饰了空间还增添了品味感。

华润二十四城-86平-北欧风格-卫生间.jpg

卫生间浅浅的小块砖艺,增添了与众不同的品位,深深浅浅的感觉给人以舒适而又轻盈。

华润二十四城-86平-北欧风格-厨房.jpg

厨房形成一个选用白色橱柜,尽显整洁又不乏时尚,处处充满着现代都市的生活的简洁明快。

华润二十四城-86平-北欧风格-平面图.jpg

案例设计师

邵丹

设计师:邵丹

从业时间:8年

设计理念:细节决定品质。

预约设计师

算算你家装修多少钱

报名即享丰厚赠品,享半价装修

免费报价
咨询热线:400-656-9909
20190221103704574636.jpg

精品设计案例

20180612134930523248.jpg 服务号二维码.jpg