立即预约 立即预约
免费定制整装家居

免费定制整装家居

一站置家 全程无忧 一省到底
hide.png

当前位置: 首页 > 装修案例效果图 > 格林玫瑰湾

格林玫瑰湾 90平 现代简约风格效果图

收藏
案例风格 现代简约 案例户型 二居 案例面积 90平米
楼盘名称 格林玫瑰湾 设计师 张景新 案例类型 婚房

设计理念:2.客厅的设计要从背景墙开始,背景的设计大胆的运用了强烈的线条感搭配对比强烈的色彩搭配,棚面加上筒灯的灯光效果 使得整个背景不在那么单一,有用石膏线把沙发背景和电视背景连接到一起,地面用条纹的地毯突出整个空间的亮点,将沙发上的抱枕和背景的挂画融为一体,使得心情更加放松愉悦。

客厅
第1张
第2张
第3张
第4张
第5张
卧室
第1张
卫生间
第1张
厨房
第1张
第2张
第3张
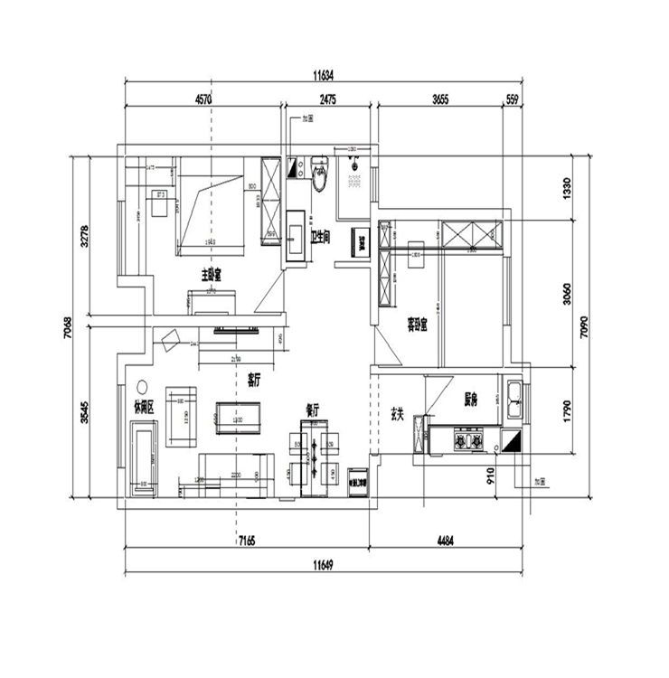
户型图
第1张
  • 案例详情

格林玫瑰湾-90平-现代风格- 首图.jpg 格林玫瑰湾-90平-现代风格- 电视背景.jpg 格林玫瑰湾-90平-现代风格- 客厅2.jpg 格林玫瑰湾-90平-现代风格- 客厅1.jpg 格林玫瑰湾-90平-现代风格- 客厅3.jpg

2.客厅的设计要从背景墙开始,背景的设计大胆的运用了强烈的线条感搭配对比强烈的色彩搭配,棚面加上筒灯的灯光效果 使得整个背景不在那么单一,有用石膏线把沙发背景和电视背景连接到一起,地面用条纹的地毯突出整个空间的亮点,将沙发上的抱枕和背景的挂画融为一体,使得心情更加放松愉悦。

格林玫瑰湾-90平-现代风格- 主卧室.jpg

卧室要设计的感觉就是给人一种,舒适,简洁大方不用太多的造型,床头的灯光设计,改变了以往的台灯,从棚顶垂下来的线条 拉近了棚面与地面的距离同时又不占用床头柜上的空间。

格林玫瑰湾-90平-现代风格- 卫生间.jpg

卫生间比较宽敞,配以深色的墙砖,使整个空间不至于太过空旷,整体定制的手盆,使得空间高端大气

格林玫瑰湾-90平-现代风格- 厨房3.jpg 格林玫瑰湾-90平-现代风格- 厨房2.jpg 格林玫瑰湾-90平-现代风格- 厨房1.jpg

厨房的墙砖选用暗纹理的哑光砖,给人一种凌乱的感觉,看上去不太好打理,但实际上与普通的抛釉砖表面一样。橱柜的台面是整个空间的底色,把上柜和下柜,做成一个形式的区分。

平面图.jpg

案例设计师

张景新

设计师:张景新

从业时间:6年

设计理念:合理的划分空间,让设计融入生活,营造自然,品味,格调

预约设计师

算算你家装修多少钱

报名即享丰厚赠品,享半价装修

免费报价
咨询热线:400-656-9909
20190221103704574636.jpg

精品设计案例

20180612134930523248.jpg 服务号二维码.jpg