立即预约 立即预约
免费定制整装家居

免费定制整装家居

一站置家 全程无忧 一省到底
hide.png

当前位置: 首页 > 装修案例效果图 > 远洋大河宸章

远洋大河宸章 168平 新中式风格效果图

收藏
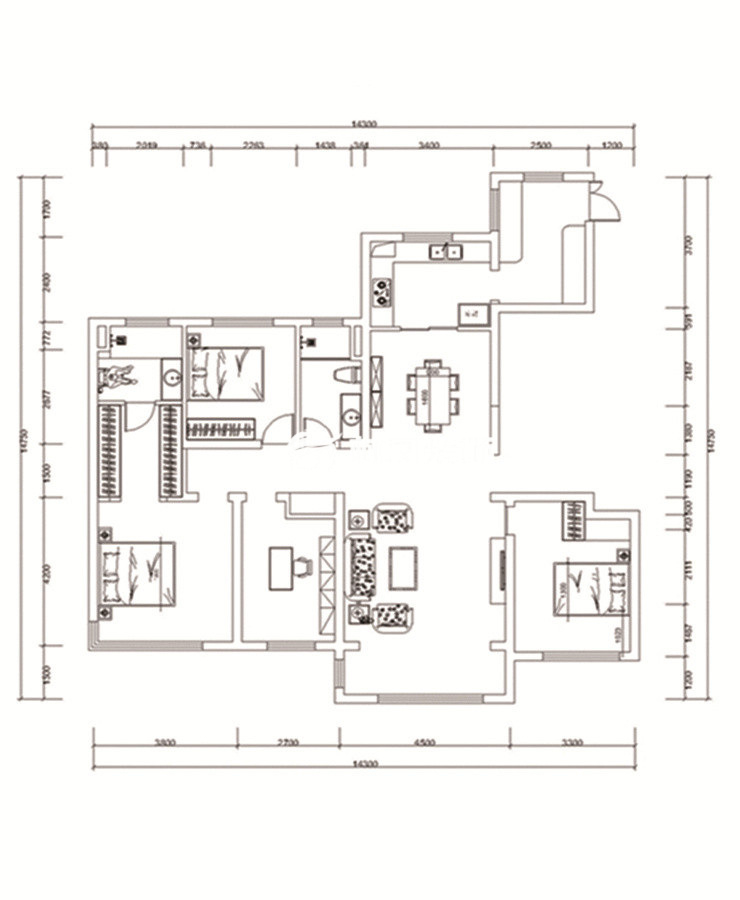
案例风格 新中式 案例户型 四居 案例面积 168平米
楼盘名称 远洋大河宸章 设计师 李承成 案例类型 改善性住宅

设计理念:本案是以新中式风格为主的设计方案。将传统的中式装修与现代装修结合,色彩上多采用朴素稳重的颜色,而新中式风格则是简洁大方,不失中国元素。在材质上可以运用现代工艺,采用对比手法,如使用理石及实木结合。

客厅
第1张
餐厅
第1张
卧室
第1张
第2张
第3张
第4张
卫生间
第1张
厨房
第1张
书房
第1张
户型图
第1张
  • 案例详情

远洋大河宸章-168平-新中式-客厅2.jpg

新中式风格非常讲究空间的层次感,背景墙两则的造型选用实木护墙板造型点缀,而中间和两侧结合处选用天然大理石做搭配,既能体现中式的元素,也不失新中式的现代感。让整个背景墙多了几分现代的贵气。

远洋大河宸章-168平-新中式-餐厅.jpg

餐厅在新中式里,需要做出分隔的功能性空间,棚顶的造型吊棚巧妙把过廊、客厅和餐厅做分割,把过廊及客厅做以分割,再以搭配定制墙壁画做题搭配,让中式餐厅更加的唯美大方。

远洋大河宸章-168平-新中式-次卧.jpg 远洋大河宸章-168平-新中式-客卧.jpg 远洋大河宸章-168平-新中式-主卧1.jpg 远洋大河宸章-168平-新中式-主卧2.jpg

.居室在色彩方面秉承了传统古典风格的典雅和华贵,主卧室硬包床头背景墙配以现代感十足的挂画,不仅颜色更加丰富,而且使得整个卧室又多了一份活力与俏皮。

远洋大河宸章-168平-新中式-卫生间.jpg

中式风格装修起来的卫生间,简洁而又实用,马桶前方的挂画让整个卫生间更加的大气,仿洞石纹理瓷砖搭配防水石膏板吊顶更显轻奢流露。

远洋大河宸章-168平-新中式-厨房.jpg 远洋大河宸章-168平-新中式-书房.jpg

书房整体感觉清新淡雅,大气错落的书柜搭配金属质感的书桌使整个房间看起来优雅又不失奢华。

远洋大河宸章-168平-新中式-户型图.jpg

案例设计师

李承成

设计师:李承成

从业时间:15年

设计理念:细节决定品质。

预约设计师

算算你家装修多少钱

报名即享丰厚赠品,享半价装修

免费报价
咨询热线:400-656-9909
20190221103704574636.jpg

精品设计案例

20180612134930523248.jpg 服务号二维码.jpg