立即预约 立即预约
免费定制整装家居

免费定制整装家居

一站置家 全程无忧 一省到底
hide.png

当前位置: 首页 > 装修案例效果图 > 辽声水韵

辽声水韵 93平 北欧风格效果图

收藏
案例风格 北欧 案例户型 二居 案例面积 93平米
楼盘名称 辽声水韵 设计师 郑婷婷 案例类型 改善性住宅

设计理念:北欧风格家居设计,简洁、干练,让家中呈现一种自然的舒适、干净之美。

客厅
第1张
餐厅
第1张
卧室
第1张
第2张
第3张
第4张
卫生间
第1张
第2张
厨房
第1张
门厅
第1张
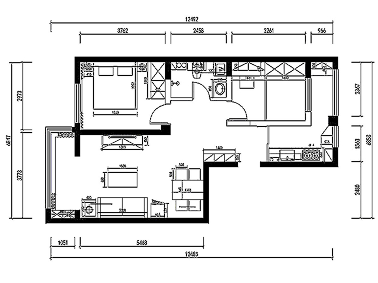
户型图
第1张
  • 案例详情

辽声水韵-93平北欧风格-客厅.jpg

客厅地面采用通透感极强的抛光地砖,棚面走一圈棚线,简单的硬装配合完美的软装,体现出简约而不简单的感觉。沙发与简朴的墙饰、地毯相呼应,整体空间宽敞明亮。

辽声水韵-93平北欧风格-餐厅.jpg

餐厅处设计注重用餐体验,因此没有太多的硬装装饰,只有些许的软装与挂画搭配,使感觉舒适自然。

辽声水韵-93平北欧风格-主卧室(1).jpg 辽声水韵-93平北欧风格-主卧室.jpg 辽声水韵-93平北欧风格-次卧室(1).jpg 辽声水韵-93平北欧风格-次卧室.jpg

卧室空间没有复杂的吊棚,用丰富多彩的软装与色彩的调和搭配出了安静舒适的居住空间。

辽声水韵-93平北欧风格-卫生间.jpg 辽声水韵-93平北欧风格-卫生间(1).jpg 辽声水韵-93平北欧风格-厨房.jpg

简洁的橱柜设计,多功能柜子的参与,无不体现着简单而不简约的风格特点。

辽声水韵-93平北欧风格-玄关.jpg 辽声水韵-93平北欧风格-户型图_副本.jpg

案例设计师

郑婷婷

设计师:郑婷婷

从业时间:9年

设计理念:用心与住宅对话,交织出住宅中的灵魂所属

预约设计师

算算你家装修多少钱

报名即享丰厚赠品,品质装修

免费报价
咨询热线:400-656-9909
20190221103704574636.jpg

精品设计案例

20180612134930523248.jpg 服务号二维码.jpg