立即预约 立即预约
免费定制整装家居

免费定制整装家居

一站置家 全程无忧 一省到底
hide.png

当前位置: 首页 > 装修案例效果图 > 清河湾

清河湾 137平 美式风格效果图

收藏
案例风格 美式 案例户型 三居 案例面积 137平米
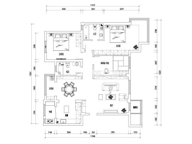
楼盘名称 清河湾 设计师 林凤设计师 案例类型 婚房

设计理念:本案为三口之家,父母偶尔来住,用美式风格营造出一种自由、无拘无束的生活空间。原户型两房朝南、双阳台做成套间形式,提高生活品质和乐趣。

  • 案例详情

清河湾-137平-美式风格-客厅.jpg 清河湾-137平-美式风格-客厅2.jpg 清河湾-137平-美式风格-客厅3.jpg 清河湾-137平-美式风格-客厅4.jpg 清河湾-137平-美式风格-客厅5.jpg

客厅选择了比较精致大气的家具,通过组合柜的搭配增加了线条层次感,简约硬朗,没有多余的浮夸装饰,同时更加注重色彩比例的把控,黄色+自然元素这样的组合已成为经典,在此处沙发和壁画的黄色起到了一个主色系的作用,实为画龙点睛之举。

清河湾-137平-美式风格-餐厅.jpg

餐厅同样采用石膏线条修饰,打造舒适的就餐环境,同时也保留了与客厅空间的沟通性,营造一个温馨舒适的居住空间。

清河湾-137平-美式风格-次卧2.jpg 清河湾-137平-美式风格-主卧.jpg 清河湾-137平-美式风格-次卧.jpg

深色的温润带来卧室的安宁感,低调随性。棕色洋溢着厚重,永恒地承载着优雅的美感,昭示着完美无瑕的品质。

清河湾-137平-美式风格-客卫.jpg 清河湾-137平-美式风格-主卫.jpg 清河湾-137平-美式风格-厨房.jpg 清河湾-137平-美式风格-厨房2.jpg 清河湾-137平-美式风格-儿童房2.jpg 清河湾-137平-美式风格-儿童房3.jpg 清河湾-137平-美式风格-儿童房.jpg 清河湾-137平-美式风格-户型图.jpg

案例设计师

林凤设计师

设计师:林凤设计师

从业时间:12年

设计理念:让设计成为艺术,让艺术进入生活。

预约设计师

算算你家装修多少钱

报名即享丰厚赠品,享半价装修

免费报价
咨询热线:400-656-9909
20190221103704574636.jpg

精品设计案例

20180612134930523248.jpg 服务号二维码.jpg