立即预约 立即预约
免费定制整装家居

免费定制整装家居

一站置家 全程无忧 一省到底
hide.png

当前位置: 首页 > 装修案例效果图 > 玉祥明居

玉祥明居 129平 其他风格效果图

收藏
案例风格 其他 案例户型 三居 案例面积 129平米
楼盘名称 玉祥明居 设计师 林凤设计师 案例类型 改善性住宅

设计理念:本案的主题为现代轻奢风格,简约俐落的质材铺叙与敞明大方的格局尺度,是轻奢风定调的设计居宅中,不可或缺的重要元素。在案例中,设计师以陈设艺术品及金属线条材质来营造大气、自然、轻奢的装饰美学氛围。墙面、地面、家具陈设等均以简洁的造型、精细的工艺为其特征,强调品质感和细节处理。

客厅
第1张
第2张
餐厅
第1张
卧室
第1张
第2张
第3张
卫生间
第1张
厨房
第1张
阳台
第1张
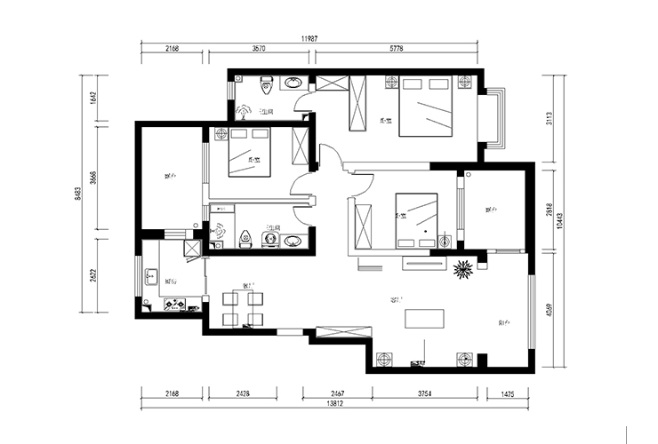
户型图
第1张
玉祥明居-103平-轻奢风格-客厅1.jpg 玉祥明居-103平-轻奢风格-客厅.jpg

孔雀绿的软包沙发与金黄颜色的抱枕在色彩上形成呼应,简单的对称布置与色彩穿插,多次出现的黑色与金属色的对比让空间显得格外的温馨、稳重、雅致。

玉祥明居-103平-轻奢风格-餐厅.jpg 玉祥明居-103平-轻奢风格-卧室1.jpg 玉祥明居-103平-轻奢风格-卧室.jpg 玉祥明居-103平-轻奢风格-卧室4.jpg

孔雀绿的墙纸让居住空间更显慵懒宁静,床头柜的使整个卧室空间富有生机

玉祥明居-103平-轻奢风格-卫生间.jpg

灰色墙砖地砖与黑色理石台面和白色手盆形成鲜明对比,增加空间层次感

玉祥明居-103平-轻奢风格-厨房.jpg

简洁的厨房设计,现代烤漆板造型与素色台面衔接,搭配黑白色条纹墙砖,让厨房空间干净整洁,让人在用餐的同时能感受家的闲适,餐厅是家庭的心脏,是一切美好的开始,吧台的作用能让人在烹饪的同时能和家人进行更亲切的互动。

玉祥明居-103平-轻奢风格-阳台.jpg 户型图.jpg

案例设计师

林凤设计师

设计师:林凤设计师

从业时间:10年

设计理念:室内设计是是人与环境的联系,是人类艺术与物质文明的结合

预约设计师

算算你家装修多少钱

报名即享丰厚赠品,享半价装修

免费报价
咨询热线:400-656-9909
20190221103704574636.jpg

精品设计案例

20180612134930523248.jpg 服务号二维码.jpg