立即预约 立即预约
免费定制整装家居

免费定制整装家居

一站置家 全程无忧 一省到底
hide.png

当前位置: 首页 > 装修案例效果图 > 霍尔寓所

霍尔寓所 99平 中式风格效果图

收藏
案例风格 中式 案例户型 二居 案例面积 99平米
楼盘名称 霍尔寓所 设计师 林凤装饰设计师 案例类型 婚房

设计理念:客户是年轻夫妻,由于男业主在日本工作,喜欢的风格很明确,想要日式风格,日式更注重细节和质感,所以对于我们的要求也高。

客厅
第1张
第2张
第3张
餐厅
第1张
第2张
卧室
第1张
第2张
第3张
卫生间
第1张
厨房
第1张
阳台
第1张
休闲区
第1张
门厅
第1张
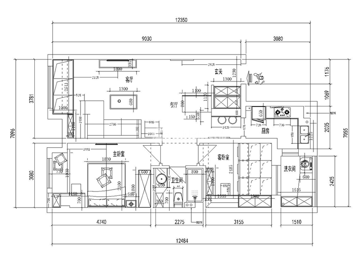
户型图
第1张
  • 案例详情

霍尔寓所-99平-日式风格-客厅1.jpg 霍尔寓所-99平-日式风格-客厅2.jpg 霍尔寓所-99平-日式风格-客厅3.jpg

客厅整体墙面都采用浅色布纹壁纸,做出日式整体空间的温馨感觉,而且整体的家具选择,都选择原木色为主,更具有复古质感的松木材质。客厅空间的功能性齐全,需要做到更细致的划分,利用客厅南向的墙体结构,做出开放储物格及日式的榻榻米休闲茶区。区域通过棚面进行划分,平面采用高度一致,只采用抽缝工艺进行造型,这样做的目的是凸显素雅的空间风格,不做现代感的凹凸造型,更体现了日式风格的平调。

霍尔寓所-99平-日式风格-餐厅.jpg 霍尔寓所-99平-日式风格-餐厅及西橱.jpg 霍尔寓所-99平-日式风格-卧室1.jpg 霍尔寓所-99平-日式风格-卧室2.jpg 霍尔寓所-99平-日式风格-休闲区.jpg

主卧室利用空调间的飘窗区域,规划出地台柜体与书桌相结合的定制家具,增加空间的功能性。卧室的朝向决定整体色调可以选用偏冷的色调,配以原木质感的家具产品,设计成舒适的日式小清新风格,更有家的感觉。

霍尔寓所-99平-日式风格-卫生间.jpg

卫生间面积适中,并且洗衣机挪到了阳光房,更有足够的空间表现,采用AB拼色设计,地重墙浅,并且做适当的格局拼花铺贴,使空间使用合理,又具有个性化。

霍尔寓所-99平-日式风格-厨房.jpg 霍尔寓所-99平-日式风格-阳台.jpg 霍尔寓所-99平-日式风格-休闲区.jpg 霍尔寓所-99平-日式风格-玄关.jpg 霍尔寓所-99平-日式风格-平面图.jpg

案例设计师

林凤装饰设计师

设计师:林凤装饰设计师

从业时间:8年

设计理念:室内环境设计是整体艺术,在设计中达到声、光、色、形的最佳匹配效果,为每位业主创造功能合理、优美舒适、物质和精神生活需要的室内环境。

预约设计师

算算你家装修多少钱

报名即享丰厚赠品,品质装修

免费报价
咨询热线:400-656-9909
20190221103704574636.jpg

精品设计案例

20180612134930523248.jpg 服务号二维码.jpg