立即预约 立即预约
免费定制整装家居

免费定制整装家居

一站置家 全程无忧 一省到底
hide.png

当前位置: 首页 > 装修案例效果图 > 金地檀府

金地檀府 88平 现代简约风格效果图

收藏
案例风格 现代简约 案例户型 二居 案例面积 88平米
楼盘名称 金地檀府 设计师 林凤装饰设计师 案例类型 改善性住宅

设计理念:本案是现代风格,以干净简洁的白色为主色调,以简洁的质感和大面积彩色做互补,提高了空间感。

客厅
第1张
第2张
餐厅
第1张
第2张
卧室
第1张
卫生间
第1张
厨房
第1张
第2张
户型图
第1张
  • 案例详情

金地檀府-88平-现代风格-客厅2.jpg 金地檀府-88平-现代风格-客厅1.jpg

客厅的电视背景墙延续了传统的白色乳胶漆,白色的电视墙面与同一平面的灰色厨房橱柜产生明暗对比。使得同一平面在色彩与空间上产生差异,拉伸整个空间的视觉效果。

金地檀府-88平-现代风格-餐厅2.jpg 金地檀府-88平-现代风格-餐厅1.jpg

考虑到餐厅与沙发在同一侧,餐厅背景墙做的金属外框挂画,用金属质感的配饰点缀整个餐厅空间。

金地檀府-88平-现代风格-卧室.jpg

卧室墙面选用了咖色暗纹壁纸与棚面的白色乳胶漆,白色床头柜达成色彩上的统一和谐,增加了视觉的温馨感。

金地檀府-88平-现代风格-卫生间.jpg

整体采用了暖米灰墙面,搭配白色洁具与深色浴室柜,坐便背景做了瓷砖拼花造型,使整个卫生间给人温暖的感觉。

金地檀府-88平-现代风格-厨房1.jpg 金地檀府-88平-现代风格-厨房2.jpg

整体瓷砖选用了白色理石纹理横向铺贴的方式,橱柜选用了灰色哑光材质,与纯白色台面对比明显,整个空间给人一种干净整洁的感觉。

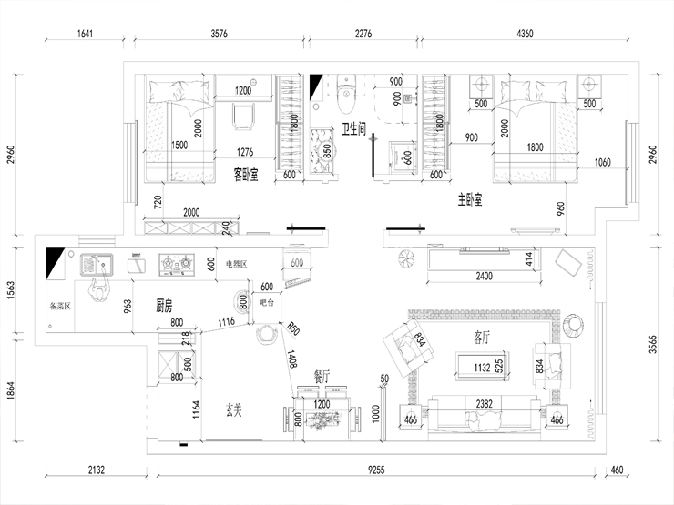
金地檀府-88平-现代风格-户型图.jpg

案例设计师

林凤装饰设计师

设计师:林凤装饰设计师

从业时间:8年

设计理念:在确保满足使用功能的前提下,达到审美效果的最大化。

预约设计师

算算你家装修多少钱

报名即享丰厚赠品,品质装修

免费报价
咨询热线:400-656-9909
20190221103704574636.jpg

精品设计案例

20180612134930523248.jpg 服务号二维码.jpg