立即预约 立即预约
免费定制整装家居

免费定制整装家居

一站置家 全程无忧 一省到底
hide.png

当前位置: 首页 > 装修案例效果图 > 碧桂园钻石郡

碧桂园钻石郡 525平 新中式风格效果图

收藏
案例风格 新中式 案例户型 五居 案例面积 525平米
楼盘名称 碧桂园钻石郡 设计师 林凤装饰 案例类型 改善性住宅

设计理念:本案房主是独立康师傅集团高管、非常喜欢新中式风格、 精华之处在于不是纯粹的元素堆砌,而是以现代人的审美需求来打造富有传统韵味的事物,让传统艺术的脉络传承下去。

客厅
第1张
第2张
餐厅
第1张
第2张
卧室
第1张
卫生间
第1张
厨房
第1张
书房
第1张
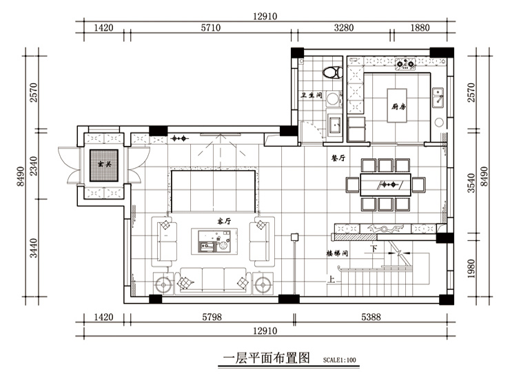
户型图
第1张
第2张
  • 案例详情

碧桂园钻石郡-525平-新中式风格-客厅1.jpg 碧桂园钻石郡-525平-新中式风格-客厅.jpg

电视背景墙采用了条线镜片与绢丝手绘中国山水画的搭配,看起来和谐统一禅意十足。

碧桂园钻石郡-525平-新中式风格-餐厅.jpg 碧桂园钻石郡-525平-新中式风格-餐厅2.jpg

本案的餐厅是以功能性的主题展示、简单实用的工艺酒柜选择与叠级吊棚搭配金属线条更丰富了中式的主题;

碧桂园钻石郡-525平-新中式风格-卧室.jpg

本案的背景墙面是传统的木作线条与带有中式花鸟的绢壁布为主,与棚面搭配设计更显奢华、典雅,也是房主最喜欢韵味。

碧桂园钻石郡-525平-新中式风格-卫生间.jpg

灰岩石瓷砖加工的尺寸极具特色、嵌入式浴缸选择和嵌入式浴柜的选购都与墙面瓷砖相得益彰、棚顶也是大气的防水石膏板吊顶简洁明快 。

碧桂园钻石郡-525平-新中式风格-厨房.jpg

厨房整体设计思路还是遵照人体工程原则、操作流程原则、采光通风原则。中间岛台的设计使得原本中规中举的橱柜更显高端、大气更有品味。

碧桂园钻石郡-525平-新中式风格-书房.jpg 碧桂园钻石郡-525平-新中式风格-平面图.jpg 碧桂园钻石郡-525平-新中式风格-平面图2.jpg

案例设计师

林凤装饰

设计师:林凤装饰

从业时间:15年

设计理念:用心感受生活,用设计完善空间,让设计与生活空间完美结合。

预约设计师

算算你家装修多少钱

报名即享丰厚赠品,品质装修

免费报价
咨询热线:400-656-9909
20190221103704574636.jpg

精品设计案例

20180612134930523248.jpg 服务号二维码.jpg