立即预约 立即预约
免费定制整装家居

免费定制整装家居

一站置家 全程无忧 一省到底
hide.png

当前位置: 首页 > 装修案例效果图 > 紫提东郡

紫提东郡 85平 现代简约风格效果图

收藏
案例风格 现代简约 案例户型 二居 案例面积 85平米
楼盘名称 紫提东郡 设计师 林凤装饰设计师 案例类型 改善性住宅

设计理念:本案风格定位现代风格,设计师通过运用现代造型的线条美感的设计来实现每个空间的合理,通过搭配家具及饰品去实现空间的美感,整体设计看起来简约不简单。

客厅
第1张
第2张
第3张
第4张
餐厅
第1张
第2张
卧室
第1张
第2张
卫生间
第1张
厨房
第1张
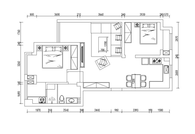
户型图
第1张
  • 案例详情

紫提东郡-85平-现代风格-客厅 (2).jpg 紫提东郡-85平-现代风格-客厅 (1).jpg 紫提东郡-85平-现代风格-客厅 (3).jpg 紫提东郡-85平-现代风格-客厅 (4).jpg

客厅采用深色基调,通过直线边棚形成区域分割,筒灯与虚光的辅助照明使得整体基调偏深的客厅再灯光开启的时候会更有感觉,尽显绅士感。客厅背景墙采用地板上墙工艺,通过材质质地的不同与其他材料形成对比,通过画品的搭配去增加整个客厅的设计感。

紫提东郡-85平-现代风格-餐厅 (1).jpg 紫提东郡-85平-现代风格-餐厅 (2).jpg

餐厅是与厨房连在一起的,采用开放式的厨房设计,凸显了空间的大气,也不会显得餐厅空间那么紧凑。顶面采用简易的顶角线,不会使得空间看起来那么狭小。

紫提东郡-85平-现代风格-主卧 (1).jpg 紫提东郡-85平-现代风格-主卧 (2).jpg

主卧地板采用灰色,床头背景是壁纸,其他墙面采用乳胶漆调色,顶棚采用石膏板直线顶角,整个灯光采用筒灯照明,更突出了卧室的线条美感,及家的舒适。

紫提东郡-85平-现代风格-卫生间.jpg

卫生间采用灰色纹理瓷砖,搭配深色木质感卫浴,显得卫生间更简单大气,也从整体色彩上与装饰风格形成了简单的呼应。

紫提东郡-85平-现代风格-厨房.jpg

客户厨房采用白色吸塑橱柜搭配灰色哑光理石瓷砖,整体颜色干净大气,且给客厅又增加了采光效果,体现了我们独特的想法。

紫提东郡-85平-现代风格-平面图.jpg

案例设计师

林凤装饰设计师

设计师:林凤装饰设计师

从业时间:10年

设计理念:合理划分空间,让设计融入生活,营造自然、品味、格调。

预约设计师

算算你家装修多少钱

报名即享丰厚赠品,享半价装修

免费报价
咨询热线:400-656-9909
20190221103704574636.jpg

精品设计案例

20180612134930523248.jpg 服务号二维码.jpg