立即预约
免费定制整装家居
一站置家 全程无忧 一省到底
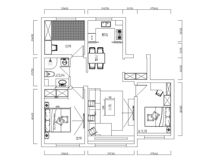
设计理念:本案风格定位现代风格,设计师通过运用现代造型的线条美感的设计来实现每个空间的美感,线条柔软雅致,整个设计别有一番风味,并且装饰材料选择适当合理。
案例详情
客厅采用暖色理石纹理瓷砖,客厅采用直线边棚与其他空间隔开,整体客厅墙面采用暖色,区别于顶面的白色,整体给别人一个层次感,也提高了装修的档次,背景墙则采用了石膏板结合壁纸,黑色烤漆玻璃,整体材质的互相搭配合理,装修效果很好。
餐厅是与厨房连在一起的,但客户不想采用开放式厨房,吊棚采用与客厅区域相呼应的直线边棚,餐厅墙面采用画品作为装饰,增加整个餐厅画面的饱满度,也满足业主的需求。
主卧地板采用实木地板,墙面也同样采用了暖色壁纸与客厅形成呼应,再搭配相协调的实木床及床头柜,整体空间看起来协调一致,尽显大气。
卫生间采用灰色理石纹理瓷砖,搭配白色深色木作相间的卫浴,显得卫生间更简单大气,也从整体色彩上与装饰风格形成了简单的呼应。
客户厨房采用白色吸塑橱柜搭配暖色仿古瓷砖,更加淋漓尽致的突显出大气而宽敞的厨房空间,解决了业主的要求。
精品设计案例
设计说明:
三室两厅一厨两卫,高层整体采用美式风格,色调以深色为主,体现美式的居家感和温馨感。
设计说明:
本案业主为年轻时尚小两口,所以我们考虑到未来想要给未来宝宝一个温馨舒适的一个房间,所以本案整体采用现代风格的手法,运用颜色,来打造整体空间的设计感及时尚感
设计说明:
本案以北欧风格为主题的设计,北欧风格能以现代、简洁、自然的特点俘获人心,所营造出来的生活氛围会让人倍感舒适与自在。
设计说明:
客户是一名成功人士,对于家的执念就是简单干净,客户衣服比较多,所以把每个空间都做了大衣柜,并且融入到设计里