立即预约 立即预约
免费定制整装家居

免费定制整装家居

一站置家 全程无忧 一省到底
hide.png

当前位置: 首页 > 装修案例效果图 > 中铁香湖

中铁香湖 80平 港式风格效果图

收藏
案例风格 港式 案例户型 二居 案例面积 80平米
楼盘名称 中铁香湖 设计师 林凤装饰全案设计师 案例类型 婚房

设计理念:现代港式风格的特点是及现代简约风格的静雅、时尚与港式风格的静谧、杂糅融为一体的独特的设计风格。

客厅
第1张
第2张
第3张
第4张
第5张
卧室
第1张
第2张
第3张
卫生间
第1张
厨房
第1张
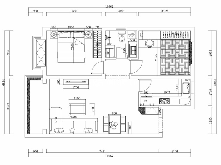
户型图
第1张
  • 案例详情

中铁香湖-80平米-现代港式风格-客厅2.jpg 中铁香湖-80平米-现代港式风格-客厅1.jpg 中铁香湖-80平米-现代港式风格-客厅3.jpg 中铁香湖-80平米-现代港式风格-客厅4.jpg 中铁香湖-80平米-现代港式风格-客厅5.jpg

客厅整体贴淡灰色壁纸,营造整体静谧的氛围,门口玄关处定制多功能鞋衣柜,能满足业主出入时衣物的临时摆放,一侧设置坐榻,方便换鞋。玄关处采用玄关立柱,与整体风格搭配而且透光性好,便于收拾。玄关将餐桌分开,迈过玄关处,客厅爵士白大理石背景墙把整个空间彰显的奢华而大气,两侧灰镜的设计更是增加了空间的立体感,灰与白的搭配,理石与镜面的反光度的呼应,营造出港式特有的线条和质感。沙发墙的装饰用装饰镜面造型取代了传统现代简约风格的挂画,取而代之的是与电视背景墙光泽度高度的呼应,整体空间再次升华,档次与生俱来。客厅整体的色调为白色、灰色和蓝色,层次分明,对比鲜明,呼应明显。

中铁香湖-80平米-现代港式风格-主卧室1.jpg 中铁香湖-80平米-现代港式风格-主卧室.jpg 中铁香湖-80平米-现代港式风格-次卧室.jpg

4.卧室整体贴淡黄色浅纹理壁纸,营造出温馨舒适的睡眠环境,床头背景采用硬包装饰,嵌入灰色镜面,软硬结合,颜色更是跟窗帘的颜色相呼应,增加整个空间的整体感、立体感。

中铁香湖-80平米-现代港式风格-卫生间.jpg

卫生间的墙面砖选择用两种颜色的地砖切割铺贴,质感更强,档次更高,不规则的错缝铺贴法也增加了空间的变化,提高了空间的艺术性和设计性。

中铁香湖-80平米-现代港式风格-厨房.jpg

厨房为封闭式厨房,墙砖用切割地砖铺贴,橱柜地柜颜色与墙面颜色相似,相呼应,增加空间的整体性,橱柜吊柜为白色,增加空间的变化与灵动,整个厨房的颜色搭配体现了干净整洁、大气和时尚的特点,与整体的现代港式风格融为一体。

中铁香湖-80平米-现代港式风格-平面图.jpg

案例设计师

林凤装饰全案设计师

设计师:林凤装饰全案设计师

从业时间:9年

设计理念:设计源于生活,服务于生活

预约设计师

算算你家装修多少钱

报名即享丰厚赠品,享半价装修

免费报价
咨询热线:400-656-9909
20190221103704574636.jpg

精品设计案例

20180612134930523248.jpg 服务号二维码.jpg