立即预约 立即预约
免费定制整装家居

免费定制整装家居

一站置家 全程无忧 一省到底
hide.png

当前位置: 首页 > 装修案例效果图 > 三盛颐景园

三盛颐景园 340平 轻奢风格效果图

收藏
案例风格 轻奢 案例户型 五居 案例面积 340平米
楼盘名称 三盛颐景园 设计师 林凤设计师 案例类型 改善性住宅

设计理念:该案设计采用现代轻奢设计风格,在案例中,设计师以陈设艺术品及金属线条材质来营造大气、自然、轻奢的装饰美学氛围。 以金属、皮革的中性色调为主,用色彩的纯度传递细腻的质感。造型简洁,线条流畅的家具组合搭配,营造出稳定、协调、温馨的空间感受。

  • 案例详情

三盛颐景园-340平米-现代轻奢风格-客厅3.jpg 三盛颐景园-340平米-现代轻奢风格-客厅1.jpg 三盛颐景园-340平米-现代轻奢风格-客厅2.jpg

客厅的设计是整个方案的重点,层次分明的棚顶造型使客厅空间更显大气,墙饰的选择更加的凸显了空间艺术氛围。简洁白色的家具选择使人置身在艺术殿堂的环抱之中,在灰色调中显得格外的舒适,安心。

三盛颐景园-340平米-现代轻奢风格-餐厅1.jpg 三盛颐景园-340平米-现代轻奢风格-餐厅2.jpg 三盛颐景园-340平米-现代轻奢风格-餐厅3.jpg 三盛颐景园-340平米-现代轻奢风格-餐厅4.jpg

餐桌为方形圆角设计,玻璃材质的表面平整而光洁,质感更强。而八张造型一致的餐桌椅围桌摆放,但又别出心裁的采用两种花纹的靠背设计,看起来更加时尚。餐厅的主灯设计也非常的独特,白炽灯泡沿着铜管左右倾斜排列,造型新颖而富有创意,更营造出一种现代轻奢的感官体验

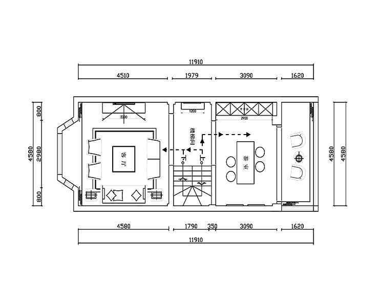
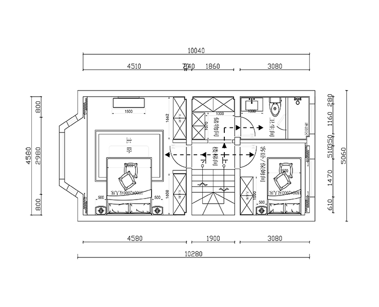
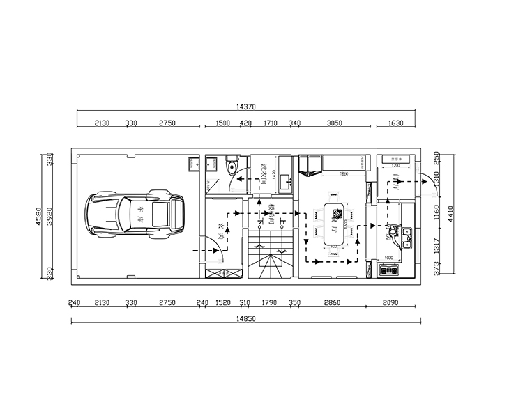
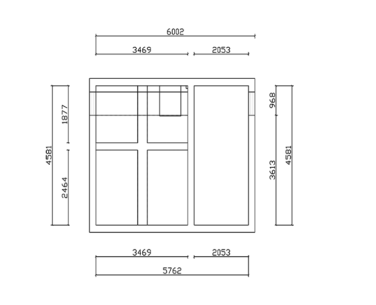
三盛颐景园-340平米-现代轻奢风格-卧室1.jpg 三盛颐景园-340平米-现代轻奢风格-卧室2.jpg 三盛颐景园-340平米-现代轻奢风格-茶室2.jpg 三盛颐景园-340平米-现代轻奢风格-茶室1.jpg 三盛颐景园-340平米-现代轻奢风格-门厅2.jpg 三盛颐景园-340平米-现代轻奢风格-门厅1.jpg 三盛颐景园-340平米-现代轻奢风格-茶室2.jpg 三盛颐景园-340平米-现代轻奢风格-过廊.jpg 三盛颐景园-340平米-现代轻奢风格-地下室平面图.jpg 三盛颐景园-340平米-现代轻奢风格-阁楼平面图.jpg 三盛颐景园-340平米-现代轻奢风格-二层平面图.jpg 三盛颐景园-340平米-现代轻奢风格-三层平面图.jpg 三盛颐景园-340平米-现代轻奢风格-一层平面图.jpg

案例设计师

林凤设计师

设计师:林凤设计师

从业时间:13年

设计理念:设计是用心雕琢的艺术品

预约设计师

算算你家装修多少钱

报名即享丰厚赠品,享半价装修

免费报价
咨询热线:400-656-9909
20190221103704574636.jpg

精品设计案例

20180612134930523248.jpg 服务号二维码.jpg