立即预约
免费定制整装家居
一站置家 全程无忧 一省到底
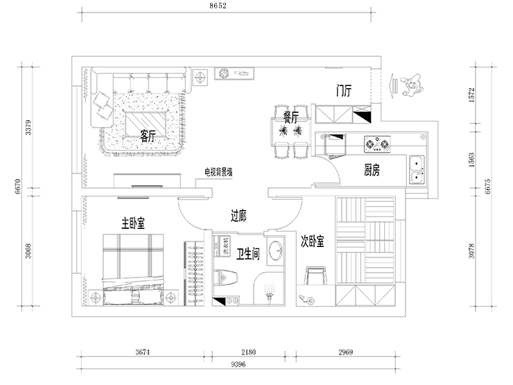
设计理念:本案北欧风格,整体给人一种简约大气的气息,没有反复的空间布局,每处都格外的干净利落,而且简洁实用。无论是房顶的吊灯,还是脚下的地板,没有琐碎多余的设计,表面光滑柔和,让人感觉温暖而舒适。
案例详情
客厅采用简洁的线条突出了整体的雅致,然而简洁并不是简单。背景墙三个连续的拱形造型、中间留白处配以白色纹理硅藻泥,生动、活泼同时立体感十足。两侧的壁灯设计,让人感觉温馨、舒适。
餐厅在整套户型中有独立的区域,抽象的挂画、俏皮的餐吊灯,木质的餐桌,温馨感十足。
书房空间不大,设计了榻榻米,门板采用了现代的白色门板,墙面深色乳胶漆调色,与榻榻米形成对比,现代感强烈。
女主人是个十分爱干净的女人,有点强迫症的她不容得一点点凌乱的存在,不允许一点点瑕疵,因此简洁清新的色调就是这里的首选,全部白色的卫浴更能诠释一个整洁女人的内心世界。。
厨房的设计更注重功能性,女主喜欢在家做饭,所以大大的操作台满足了功能性的需要。颜色上,白色的烤漆橱柜搭配灰色系的墙砖,耐用的同时效果也更加的高档。
精品设计案例
设计说明:
三室两厅一厨两卫,高层整体采用美式风格,色调以深色为主,体现美式的居家感和温馨感。
设计说明:
本案业主为年轻时尚小两口,所以我们考虑到未来想要给未来宝宝一个温馨舒适的一个房间,所以本案整体采用现代风格的手法,运用颜色,来打造整体空间的设计感及时尚感
设计说明:
本案以北欧风格为主题的设计,北欧风格能以现代、简洁、自然的特点俘获人心,所营造出来的生活氛围会让人倍感舒适与自在。
设计说明:
客户是一名成功人士,对于家的执念就是简单干净,客户衣服比较多,所以把每个空间都做了大衣柜,并且融入到设计里