立即预约 立即预约
免费定制整装家居

免费定制整装家居

一站置家 全程无忧 一省到底
hide.png

当前位置: 首页 > 装修案例效果图 > 圣水苑

圣水苑 160平 现代简约风格效果图

收藏
案例风格 现代简约 案例户型 三居 案例面积 160平米
楼盘名称 圣水苑 设计师 林凤装饰设计师 案例类型 婚房

设计理念:本案风格定位为现代风格,通过颜色与材料的搭配,营造一个简约时尚的空间。

客厅
第1张
第2张
餐厅
第1张
卧室
第1张
卫生间
第1张
厨房
第1张
门厅
第1张
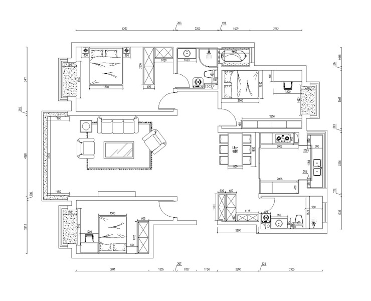
户型图
第1张
  • 案例详情

圣水苑-160平-现代风格-客厅.jpg 圣水苑-160平-现代风格-客厅1.jpg

通过墙面颜色的调整作为客厅主要装饰,家具配饰为点缀。棚上空间采用最简洁的平棚和筒灯的搭配,让空间看起来更简洁大方,把视觉重点落在家具与墙面造型上。

圣水苑-160平-现代风格-餐厅.jpg

餐厅位置选用六人位餐桌,不但使空间有效的利用,大大的增加了实用性。

圣水苑-160平-现代风格-主卧室1.jpg

主卧室背景墙颜色为灰色,其他几面墙均为白色,使得整个空间和客厅区域更有效的相结合。

圣水苑-160平-现代风格-客卫生间.jpg

卫生间整体运用灰色砖来镶嵌,使得整个空间干净且立体感更强。

圣水苑-160平-现代风格-厨房.jpg

考虑到业主经常做饭,所以厨房采用封闭式,且为通透的玻璃拉门,这样使整个空间通透性更好。

圣水苑-160平-现代风格-玄关.jpg 平面布置图.jpg

案例设计师

林凤装饰设计师

设计师:林凤装饰设计师

从业时间:6年

设计理念:家居设计是一种艺术表现方式,是设计师与客户共同参与的一项创作活动。

预约设计师

算算你家装修多少钱

报名即享丰厚赠品,享半价装修

免费报价
咨询热线:400-656-9909
20190221103704574636.jpg

精品设计案例

20180612134930523248.jpg 服务号二维码.jpg