立即预约
免费定制整装家居
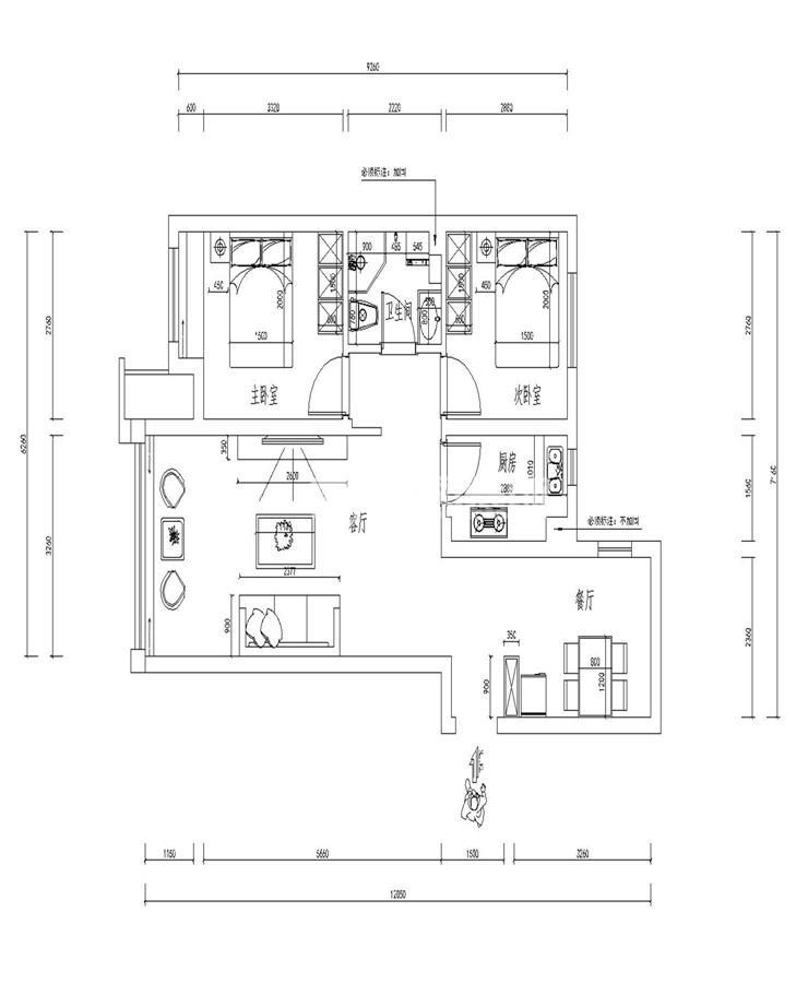
一站置家 全程无忧 一省到底
设计理念:业主是一对老人,喜欢简单舒适的感觉,喜欢暖色调,要求室内具有储物功能,简洁大方,功能分区明确
案例详情
客厅棚主要运用圈棚来进行区域的划分,电视背景墙使用米色纹理壁布,使整体看起来温暖,墙面使用白色色系使整体看起来既温暖而不失优雅,加大了空间的视觉效果,满足客户需求。
餐厅搭配现代感十足的餐桌,让餐厅极简又时尚。餐桌上方配三个小吊灯让餐厅更家明亮,餐边柜美观实用,餐厅搭配与客厅和谐统一。餐桌旁的墙面做隔板装饰,给家增添一份灵动。
卧室使用深灰色家具,背景墙用蓝色壁布,淡雅且有质感,同时满足客户简约需求。淡灰色窗帘给卧室增添一份宁静典雅。使其空间舒适、温馨,体现出简洁而又精致的设计。
卫生间使用灰色理石纹理瓷砖,使空间的看上去大气时尚,洁具简单大方,满足使用功能。
厨房墙选用浅灰色瓷砖、原木色橱柜彰显低调奢华,布局紧密,充分利用每一寸使用空间
精品设计案例
设计说明:
三室两厅一厨两卫,高层整体采用美式风格,色调以深色为主,体现美式的居家感和温馨感。
设计说明:
本案业主为年轻时尚小两口,所以我们考虑到未来想要给未来宝宝一个温馨舒适的一个房间,所以本案整体采用现代风格的手法,运用颜色,来打造整体空间的设计感及时尚感
设计说明:
本案以北欧风格为主题的设计,北欧风格能以现代、简洁、自然的特点俘获人心,所营造出来的生活氛围会让人倍感舒适与自在。
设计说明:
客户是一名成功人士,对于家的执念就是简单干净,客户衣服比较多,所以把每个空间都做了大衣柜,并且融入到设计里