立即预约 立即预约
免费定制整装家居

免费定制整装家居

一站置家 全程无忧 一省到底
hide.png

当前位置: 首页 > 装修案例效果图 > 金地旭辉九韵风华

金地旭辉九韵风华 450平 新中式风格效果图

收藏
案例风格 新中式 案例户型 三居 案例面积 450平米
楼盘名称 金地旭辉九韵风华 设计师 林凤装饰设计师 案例类型 改善性住宅

设计理念:本案为新中式风格。与其它西方、东南亚等装修风格有很大不同,首先所营造的文化氛围是有其特定的文化背景作为支撑,以此来传递特定文化氛围中人们的生活追求,营造中国浪漫情调的生活空间。

客厅
第1张
第2张
餐厅
第1张
卧室
第1张
卫生间
第1张
厨房
第1张
休闲区
第1张
过廊
第1张
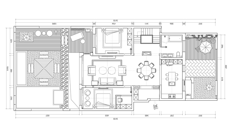
户型图
第1张
  • 案例详情

金地旭辉九韵风华-450平-新中式风格-客厅1.jpg 金地旭辉九韵风华-450平-新中式风格-客厅2.jpg

客厅地面采用暖灰色纹理地砖, 吊棚为简单的边棚设计棚内采用石膏线条粘贴进行装饰,电视背景墙为理石. 沙发背景墙采用硬包的中式元素图 整体清新自然,后期加上布艺沙发 简洁明了。

金地旭辉九韵风华-450平-新中式风格-餐厅.jpg

餐厅空间采用实木色调的装饰酒柜 整体温馨简约 客户喜欢明亮 所以选择对厨房进行稍微的改造实现透光性

金地旭辉九韵风华-450平-新中式风格-卧室.jpg

卧室空间在卧室床头背景采用带有些布纹硬包 即包含了硬朗的线条又不失其舒适性 整体为暖色 呈现出简约温馨的感觉

金地旭辉九韵风华-450平-新中式风格-卫生间.jpg 金地旭辉九韵风华-450平-新中式风格-厨房.jpg

厨房为敞开式,灰色的墙砖搭配木色橱柜彰显中式文化气息,厨房的岛台是为了家中有更好的互动关系以及更方便的操作性。

金地旭辉九韵风华-450平-新中式风格-茶室.jpg 金地旭辉九韵风华-450平-新中式风格-楼梯间.jpg 金地旭辉九韵风华-450平-新中式风格-户型图.jpg

案例设计师

林凤装饰设计师

设计师:林凤装饰设计师

从业时间:10年

设计理念:搭建人与空间对话、物质与精神完美完美结合,设计源于生活,源于内心。

预约设计师

算算你家装修多少钱

报名即享丰厚赠品,享半价装修

免费报价
咨询热线:400-656-9909
20190221103704574636.jpg

精品设计案例

20180612134930523248.jpg 服务号二维码.jpg