立即预约 立即预约
免费定制整装家居

免费定制整装家居

一站置家 全程无忧 一省到底
hide.png

当前位置: 首页 > 装修案例效果图 > 龙湖唐宁one

龙湖唐宁one 156平 现代简约风格效果图

收藏
案例风格 现代简约 案例户型 四居 案例面积 156平米
楼盘名称 龙湖唐宁one 设计师 林凤装饰 案例类型 改善性住宅

设计理念:通过与业主的沟通,了解业主的生活品味,通过现代风格打造一个时尚与潮流的生活环境

客厅
第1张
第2张
第3张
餐厅
第1张
卧室
第1张
卫生间
第1张
厨房
第1张
门厅
第1张
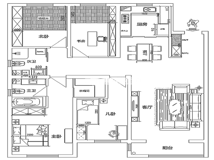
户型图
第1张
  • 案例详情

龙湖唐宁one-156平-现代风格-客厅.jpg 龙湖唐宁one-156平-现代风格-客厅2.jpg 龙湖唐宁one-156平-现代风格-客厅1.jpg

在客厅电视背景墙的造型上采用了石膏线设计,客厅沙发组合以灰色为主,布料选用有质感的丝质面料,体现了现代风格的时尚,是个不错的搭配,波导线的设计让室内空间的划分更加清晰。。

龙湖唐宁one-156平-现代风格-餐厅.jpg

一个完美的餐厅,只有现代风格的设计与装修是远远不够的。缺少了视觉中心的设计是不能给业主深刻印象的。因此,在空间的视觉焦点,以及一些墙面的"留白"部分,常常以一些带有特色的艺术品和装饰画来进行点缀,以求丰富空间感受,烘托传统气氛。

龙湖唐宁one-156平-现代风格-卧室.jpg

卧室以亮丽的色调为主,现代窗给人清新的感觉,衣柜大方简洁,线条流畅,富有时尚气息,充分体现自然、闲适、简洁、时尚的新生活理念,营造完美舒适的卧房空间,带给人内心的宁静。轻柔的颜色给你带来耳目一新的感觉,更希望可以解决你在卧室装潢上的烦恼。

龙湖唐宁one-156平-现代风格-卫生间.jpg 龙湖唐宁one-156平-现代风格-厨房.jpg

由于和客厅、饭厅之间相互呼应,因此厨房设计时风格一定要和家装整体风格保持一致,整个厨房给人比较实用的感觉。

龙湖唐宁one-156平-现代风格-门厅.jpg 龙湖唐宁one-156平-现代风格-平面图.png

案例设计师

林凤装饰

设计师:林凤装饰

从业时间:6年

设计理念:万科翡翠书院 金地旭辉九韵风华 华润奉天九里 中海和平之门 龙湖唐宁one 金水花城 金辉湖畔里

预约设计师

算算你家装修多少钱

报名即享丰厚赠品,享半价装修

免费报价
咨询热线:400-656-9909
20190221103704574636.jpg

精品设计案例

20180612134930523248.jpg 服务号二维码.jpg