立即预约 立即预约
免费定制整装家居

免费定制整装家居

一站置家 全程无忧 一省到底
hide.png

当前位置: 首页 > 装修案例效果图 > 碧桂园繁华里

碧桂园繁华里 69平 北欧风格效果图

收藏
案例风格 北欧 案例户型 二居 案例面积 69平米
楼盘名称 碧桂园繁华里 设计师 全案整装 案例类型 改善性住宅

设计理念:以简约著称的北欧风格,要求即具有后现代主义特色,另外还要具备现代、实用、工业、异域的特殊造型天赋。简约流畅的线条设计,也正意味着进入新时代的某种取向与旋律。

客厅
第1张
第2张
餐厅
第1张
卧室
第1张
卫生间
第1张
厨房
第1张
阳台
第1张
门厅
第1张
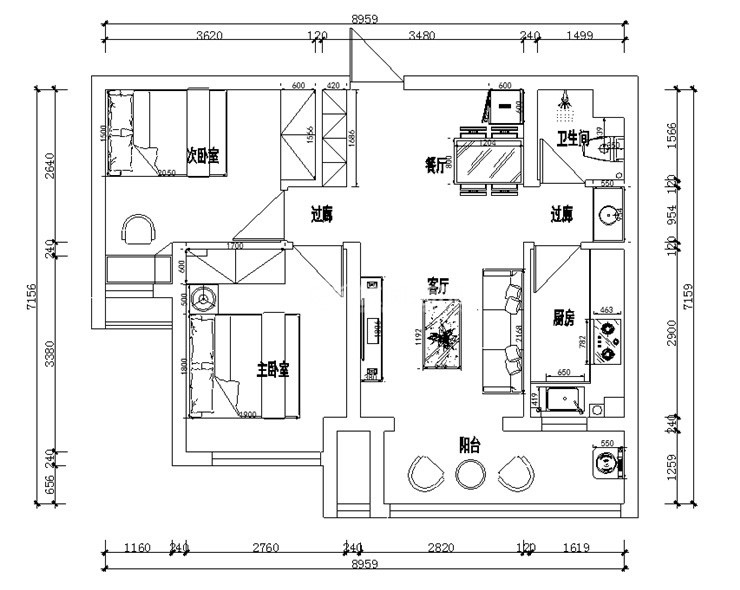
户型图
第1张
  • 案例详情

碧桂园繁华里-69平-北欧风格-客厅(1).jpg 碧桂园繁华里-69平-北欧风格-客厅(2).jpg

本案以经典工业风气息与原森木色家具为主题的客厅,黑色的铁艺花架在奶白色乳胶漆背景墙的映衬颇有些后现代工业韵味。个性时尚的米色落地沙发小灯在原木色家具的映衬下更加从容自在而不失家的温馨。

碧桂园繁华里-69平-北欧风格-餐厅.jpg

以简单个性不失北欧风的餐厅,自在随性的餐厅小垂吊灯,在延续温馨色调心情的客厅,餐厅不失光采亮黄色的餐椅靠包与餐挂画形成鲜明的对比,而不失生活趣味,用餐更有情调,不规则的奶白色实家具与原木色的家具相结合,入户鞋衣柜在餐桌的映衬更独立不失神秘之感。

碧桂园繁华里-69平-北欧风格-主卧室.jpg

以个性典雅为主题的卧室.桃粉色的床头墙面与休闲舒适的自然色软包床头融为一体,个性工业风的床头小灯把整个空间点缀的更加柔美,湖蓝色的布艺窗帘与自然色地板相融合.使得整个卧室更加温馨舒适。

碧桂园繁华里-69平-北欧风格-卫生间.jpg

以明尚为主题的卫生间,白蓝色墙砖在奶白色的卫浴的映衬下更加醒目,独立的淋浴空间与卫浴的摆放错落有序。

碧桂园繁华里-69平-北欧风格-厨房.jpg

以简单大气为主题北欧厨房,个性简单的奶白色L型厨柜在白色防古墙小砖的映衬下更加独特与时尚。

碧桂园繁华里-69平-北欧风格-阳台.jpg 碧桂园繁华里-69平-北欧风格-门厅.jpg 碧桂园繁华里-69平-北欧风格-平面图.jpg

案例设计师

全案整装

设计师:全案整装

从业时间:20年

设计理念:美而不虚,华而不俗,在有限的空间,创造无限的可能。

预约设计师

算算你家装修多少钱

报名即享丰厚赠品,品质装修

免费报价
咨询热线:400-656-9909
20190221103704574636.jpg

精品设计案例

20180612134930523248.jpg 服务号二维码.jpg