立即预约 立即预约
免费定制整装家居

免费定制整装家居

一站置家 全程无忧 一省到底
hide.png

当前位置: 首页 > 装修案例效果图 > 龙湖唐宁one

龙湖唐宁one 95平 北欧风格效果图

收藏
案例风格 北欧 案例户型 二居 案例面积 95平米
楼盘名称 龙湖唐宁one 设计师 高阳 案例类型 婚房

设计理念:北欧风格的设计以暖色系为主。北欧风格的居家空间,色调上以浅色系为主:白色、米色、浅木色等,而材质方面以自然的元素,如木、藤、柔软质朴的纱麻布品等,所使用材质、色彩都可兼容

客厅
第1张
第2张
餐厅
第1张
第2张
卧室
第1张
卫生间
第1张
厨房
第1张
门厅
第1张
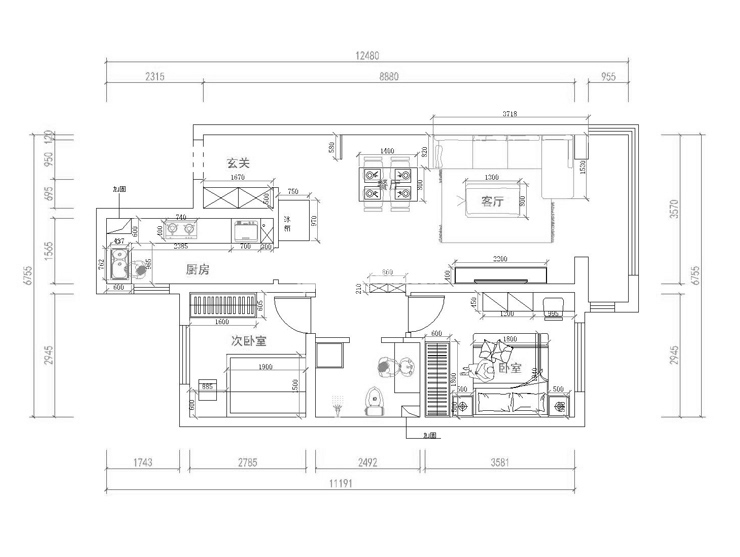
户型图
第1张
  • 案例详情

龙湖唐宁ONE-95平-北欧风格-客厅.jpg 龙湖唐宁ONE-95平-北欧风格-客厅1.jpg

米黄色的沙发和实木的茶几,仿大理石纹理的瓷砖配上黄色与棕色的抱枕和艺术壁画,使空间色彩丰富起来,给人带来舒适的感觉。

龙湖唐宁ONE-95平-北欧风格-餐厅.jpg 龙湖唐宁ONE-95平-北欧风格-餐厅1.jpg 龙湖唐宁ONE-95平-北欧风格-卧室.jpg

卧室空间的设计,灰色的墙面,原木色的床头柜格子形的床单与抱枕,搭配大地系的窗帘,给人以时尚明朗、整齐干净的视觉感受。。

龙湖唐宁ONE-95平-北欧风格-卫生间.jpg

墙面灰色的瓷砖上墙,与地面的瓷砖颜色对比分明,白色的洁具与原木色的浴室柜,使空间看起来明亮简洁。

龙湖唐宁ONE-95平-北欧风格-厨房.jpg

地面和墙面使用的使仿古砖,搭配白漆面的上柜和白色的吊顶,橱柜以米黄色的台面白漆面的下柜,不仅看起来时尚,而且也可以增加厨房内部的亮度。不同材质的融合与碰撞,让空间明净且具有超强的质感。

龙湖唐宁ONE-95平-北欧风格-门厅.jpg 龙湖唐宁ONE-95平-北欧风格-平面布置图.jpg

案例设计师

高阳

设计师:高阳

从业时间:11年

设计理念:有限空间、无限设计。

预约设计师

算算你家装修多少钱

报名即享丰厚赠品,享半价装修

免费报价
咨询热线:400-656-9909
20190221103704574636.jpg

精品设计案例

20180612134930523248.jpg 服务号二维码.jpg