立即预约 立即预约
免费定制整装家居

免费定制整装家居

一站置家 全程无忧 一省到底
hide.png

当前位置: 首页 > 装修案例效果图 > 阳光100芒果城

阳光100芒果城 110平 现代简约风格效果图

收藏
案例风格 现代简约 案例户型 三居 案例面积 110平米
楼盘名称 阳光100芒果城 设计师 林凤设计师 案例类型 婚房

设计理念:本案是现代风格,整体偏男性化的设计效果,时尚,简单。

客厅
第1张
第2张
第3张
餐厅
第1张
卧室
第1张
第2张
卫生间
第1张
厨房
第1张
门厅
第1张
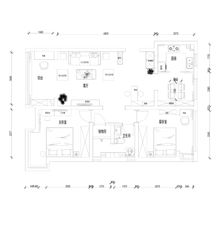
户型图
第1张
  • 案例详情

阳光100芒果城-110平-现代风格-客厅1.jpg 阳光100芒果城-110平-现代风格-客厅2.jpg 阳光100芒果城-110平-现代风格-客厅3.jpg

白色胡桃木色撞色的家具,暖色大理石纹地砖, 简单时尚的灯具,大面积留白的墙面跟一面暗蓝色壁纸的背景墙形成强烈的对比,黄色皮质沙发成了整个空间的点睛之笔,也让整个空间 的色彩更加和谐。

阳光100芒果城-110平-现代风格-餐厅.jpg

餐厅作为独立空间,不仅具备就餐还有一个很大的储物跟造作台的空间,可以说是个多空能的空间。在色彩上当然要与客厅要统一、和谐。

阳光100芒果城-110平-现代风格-主卧室.jpg 阳光100芒果城-110平-现代风格-次卧室.jpg

主卧室作为主人房,整个房间的设计比较男性化,墙面及窗帘都是用的暗蓝色, 深咖色的布艺床,都遵循整套方案的色彩搭配。

阳光100芒果城-110平-现代风格-卫生间.jpg

卫生间的效果是业主比较喜欢的,墙砖用的是灰色理石纹的墙砖,纹理线条清晰,洁具都是白色的,这使整个空间加大很多。

阳光100芒果城-110平-现代风格-厨房.jpg

厨房的橱柜材质是爱家板的,本身爱家板的橱柜都是亚光的,这个选择是布纹亚光的板材,上浅下深的搭配加大空间感,又与客厅家具的撞色相呼应。

阳光100芒果城-110平-现代风格-玄关.jpg 阳光100芒果城-110平-现代风格-平面图.jpg

案例设计师

林凤设计师

设计师:林凤设计师

从业时间:8年

设计理念:艺术是生活的升华,设计是艺术的呈现。

预约设计师

算算你家装修多少钱

报名即享丰厚赠品,享半价装修

免费报价
咨询热线:400-656-9909
20190221103704574636.jpg

精品设计案例

20180612134930523248.jpg 服务号二维码.jpg