立即预约 立即预约
免费定制整装家居

免费定制整装家居

一站置家 全程无忧 一省到底
hide.png

当前位置: 首页 > 装修案例效果图 > 全季首府

全季首府 88平 北欧风格效果图

收藏
案例风格 北欧 案例户型 三居 案例面积 88平米
楼盘名称 全季首府 设计师 林凤装饰设计师 案例类型 改善性住宅

设计理念:客户为刚结婚的年轻人,房子是用作婚房设计主题围绕着简约的原色特点 新颖.色彩.来设计营造出温馨时尚的感觉

客厅
第1张
第2张
餐厅
第1张
第2张
卧室
第1张
卫生间
第1张
厨房
第1张
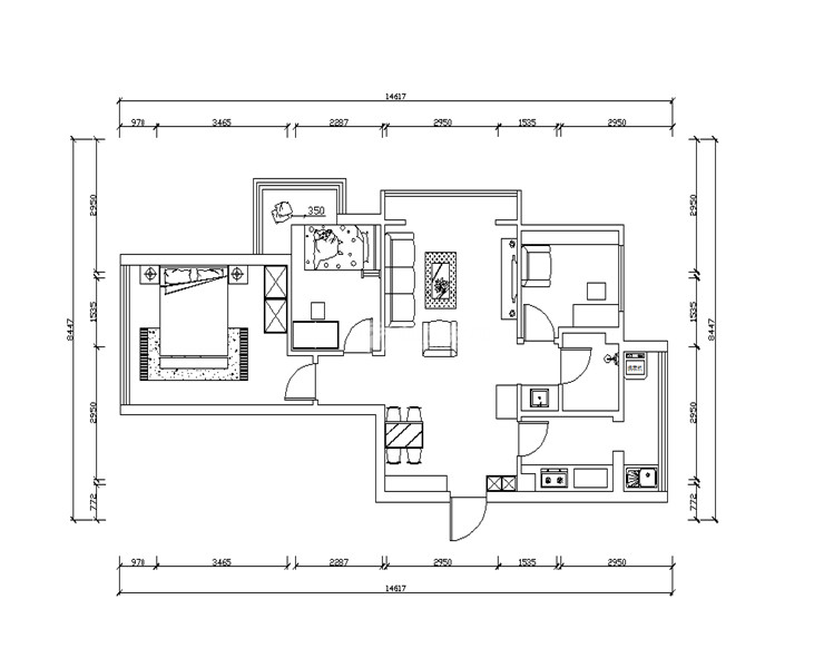
户型图
第1张
  • 案例详情

全季首府-88平-北欧风格-客厅2 - 副本.jpg 全季首府-88平-北欧风格-客厅1 - 副本.jpg

户型为3室1厅户型,客厅地面采用深灰色纹理抛釉地砖, 吊棚为简单的边棚设计棚内采用石膏线粘贴进行装饰,电视背景墙是直接简单的粉刷深灰色乳胶漆来加以个性化装饰 墙上简单的做了隔板. 沙发背景墙采用地板上墙为搭配 整体清新自然,后期加上布艺沙发 简洁明了

全季首府-88平-北欧风格-餐厅2.jpg 全季首府-88平-北欧风格-餐厅1.jpg

餐厅空间采用明亮的北欧装饰 搭配实木色调的餐桌餐椅 整体温馨简约 客户喜欢明亮 所以选择对厨房进行稍微的改造实现透光性

全季首府-88平-北欧风格-卧室.jpg

卧室空间在卧室床头背景采用条纹壁纸 整体为咖色 呈现出简约时尚的感觉 跟客户后期搭配的玻璃门 相互呼应

全季首府-88平-北欧风格-卫生间.jpg 全季首府-88平-北欧风格-厨房.jpg

厨房改推拉门 进光好一些,两面的墙垛对冰箱和灶具有很好的修饰作用 ,木色的橱柜搭配灰色的瓷砖,更突显北欧风格的质感.

全季首府-88平-北欧风格-平面图.jpg

案例设计师

林凤装饰设计师

设计师:林凤装饰设计师

从业时间:4年

设计理念:突破固有思维 ,设计为设计添彩

预约设计师

算算你家装修多少钱

报名即享丰厚赠品,品质装修

免费报价
咨询热线:400-656-9909
20190221103704574636.jpg

精品设计案例

20180612134930523248.jpg 服务号二维码.jpg