立即预约 立即预约
免费定制整装家居

免费定制整装家居

一站置家 全程无忧 一省到底
hide.png

当前位置: 首页 > 装修案例效果图 > 曼哈顿庄园

曼哈顿庄园 217平 混搭风格效果图

收藏
案例风格 混搭 案例户型 三居 案例面积 217平米
楼盘名称 曼哈顿庄园 设计师 林凤装饰设计师 案例类型 改善性住宅

设计理念:本案设计风格以简洁大方为主体思路,颜色搭配和材质的搭配使本案的重点,现代简约的主体风格规划后现代材质元素的点缀搭配,整体的效果完全按照客户的要求量身定制,灯光的色彩和材质的融合是本案的主体灵魂,搭配出整洁大方不失档次的设计方案!

客厅
第1张
第2张
第3张
第4张
第5张
餐厅
第1张
第2张
卧室
第1张
第2张
卫生间
第1张
厨房
第1张
门厅
第1张
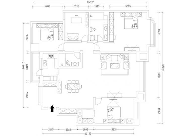
户型图
第1张
  • 案例详情

曼哈顿庄园-217平 -后现代混搭风格-客厅.jpg 曼哈顿庄园-217平 -后现代混搭风格-客厅1.jpg 曼哈顿庄园-217平 -后现代混搭风格-客厅2.jpg 曼哈顿庄园-217平 -后现代混搭风格-全景.jpg 曼哈顿庄园-217平 -后现代混搭风格-客厅3.jpg

客厅的吊棚和光源都采用的灯池配主灯的设计方法操作,主灯采用现代感独特的线条明显的吊灯来做,金属的质感和背景墙理石的光亮质感呼应与黑色的白钢条装饰形成鲜明的颜色对比,配合烤漆的电视柜茶几,和灰色的布艺沙发,在整个黑白灰的空间里出现了暖色的理石背景墙,整体颜色协调,红色壁画的作为点缀颜色富有生命感!

曼哈顿庄园-217平 -后现代混搭风格-餐厅.jpg 曼哈顿庄园-217平 -后现代混搭风格-餐厅1.jpg

餐厅的空间比较稳重,颜色偏重,实木地板上墙,咖色的餐椅,配合灯光,整体感觉比较高端,灯饰是这个空间的亮点,和餐桌的绿植做呼应对比!

曼哈顿庄园-217平 -后现代混搭风格-主卧室.jpg 曼哈顿庄园-217平 -后现代混搭风格-卧室.jpg

卧室的感觉与客厅整体风格感觉一致黑色的实木床配合白色的衣柜形成鲜明的颜色对比,淡蓝色的窗帘使整个空间都比较简洁大方典雅,灰色的地毯咖色的床品,整体颜色搭配上档次,主要是两边的台灯和床头的饰品是起到画龙点睛的重点,使整个空间材质富有生命!

曼哈顿庄园-217平 -后现代混搭风格-卫生间.jpg 曼哈顿庄园-217平 -后现代混搭风格-厨房.jpg 曼哈顿庄园-217平 -后现代混搭风格-玄关.jpg 曼哈顿庄园-217平 -后现代混搭风格-平面.jpg

案例设计师

林凤装饰设计师

设计师:林凤装饰设计师

从业时间:7年

设计理念:设计源于生活,生活因设计而改变!成就空间和谐,让设计物有所值!让细节缔造完美!

预约设计师

算算你家装修多少钱

报名即享丰厚赠品,品质装修

免费报价
咨询热线:400-656-9909
20190221103704574636.jpg

精品设计案例

20180612134930523248.jpg 服务号二维码.jpg