立即预约 立即预约
免费定制整装家居

免费定制整装家居

一站置家 全程无忧 一省到底
hide.png

当前位置: 首页 > 装修案例效果图 > 万锦香樟树

万锦香樟树 116平 其他风格效果图

收藏
案例风格 其他 案例户型 三居 案例面积 116平米
楼盘名称 万锦香樟树 设计师 林凤装饰设计师 案例类型 婚房

设计理念:用艺术化是手法,以人为本的理念,设计营造出人性化,合理的室内外空间的舒适环境。

客厅
第1张
第2张
餐厅
第1张
第2张
卧室
第1张
卫生间
第1张
厨房
第1张
第2张
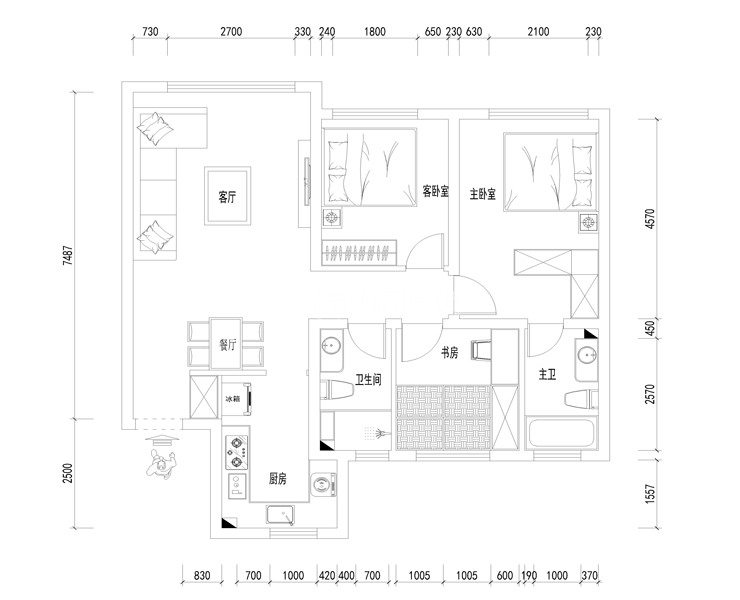
户型图
第1张
  • 案例详情

万锦香樟树-116平-简美-客厅(2).jpg 万锦香樟树-116平-简美客厅.jpg

客厅作为待客区域,业主要求设计上色彩搭配合理,客厅地面选用仿古砖,仿古砖铺贴讲究个性化,易于清洁,电视背景墙造型简洁用色简单,有利感之感,没有浮夸表面装饰处理,褐色电视柜进行点缀。空间具有层次感,沙发背景墙采用挂画的形式,与电视背景墙相呼应,主次分明,客厅区域看起来沉稳内涵。

万锦香樟树-116平-简美-餐厅(2).jpg 万锦香樟树-116平-简美-餐厅.jpg

餐厅是人们就餐的场所,褐色圆形餐桌搭配黄色蓝色两种不同颜色的餐椅进行点缀,整个空间色彩相协调,具有违和感,背景墙放置两层隔板,使整个空间不单调,颜色搭配一置,为业主营造一个舒适怡人的就餐环境。

万锦香樟树-116平-简美-卧室.jpg

卧室作为休息放松的重要地点,即使是简单也不能缺少基本的元素,所以在卧室简单设计时,考虑的因素就包括了灯光,衣柜,床等,这些虽然不需要太过复杂,只需要简单大方即可,但却要样样俱全,否则也就失去了卧室的基本功能。

万锦香樟树-116平-简美-卫生间.jpg

想要把卫生间装修的美观实用,首要的就是做一个整体的设计,卫生间具有清洗,浴室,厕所三个功能,首先我们要设计好收纳柜卫浴用品的位置。棚面选用防潮石膏板,具有较高的防水性能,

万锦香樟树-116平-简美-厨房(2).jpg 万锦香樟树-116平-简美-厨房.jpg

开放式厨房,巧妙的运用U型橱柜,将洗菜盆放在窗下,让你在清洗时更容易分辨,便于清洗,也然你在劳作时享受外面的景色,感受外面的清新空气,让你的劳作疲惫轻而易举的消除,白色橱柜 ,干净朴素淡雅,与电器瓷砖搭配和谐,时尚清新。

万锦香樟树-116平-简美-平面图.jpg

案例设计师

林凤装饰设计师

设计师:林凤装饰设计师

从业时间:11年

设计理念:艺术的手法,以人为本

预约设计师

算算你家装修多少钱

报名即享丰厚赠品,享半价装修

免费报价
咨询热线:400-656-9909
20190221103704574636.jpg

精品设计案例

20180612134930523248.jpg 服务号二维码.jpg