立即预约 立即预约
免费定制整装家居

免费定制整装家居

一站置家 全程无忧 一省到底
hide.png

当前位置: 首页 > 装修案例效果图 > 听雨观澜

听雨观澜 118平 现代简约风格效果图

收藏
案例风格 现代简约 案例户型 三居 案例面积 118平米
楼盘名称 听雨观澜 设计师 林凤装饰设计师 案例类型 改善性住宅

设计理念:业主是年轻的一家三口,日本人,喜欢比较简单干净的风格,孩子较小,所以除了环保外还要考虑可能会影响孩子的生活环境。

客厅
第1张
餐厅
第1张
第2张
第3张
卧室
第1张
第2张
卫生间
第1张
厨房
第1张
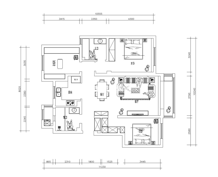
户型图
第1张
  • 案例详情

听雨观澜-118平-现代风格-客厅.jpg

客厅棚面主要用石膏板直线边棚来做一个区域分割,电视背景墙无造型,干净质朴,墙面尽通过几幅现代画来装饰,现代画要选用颜色比较丰富的画,主要是考虑到孩子要从小培养颜色意识。

听雨观澜-118平-现代风格-餐厅.jpg 听雨观澜-118平-现代风格-餐厅2.jpg 听雨观澜-118平-现代风格-客餐厅.jpg

餐厅搭配的餐桌比较简单,但是配以鲜艳的绿植,使得空间多了一丝生机与俏皮。

听雨观澜-118平-现代风格-次卧.jpg 听雨观澜-118平-现代风格-主卧.jpg

主卧室的床现代感比较强,床头背景不宜太过复杂选用硅藻泥简单涂饰,现代感十足,颜色较浅,使得空间更为明亮,大大的增加了舒适度。

听雨观澜-118平-现代风格-次卫.jpg

卫生间地面的砖比较个性,色彩比较丰富,墙面干净整洁,独立洗衣房与浴室之间用浴屏做间隔,明亮通透,方便后期排除潮气,洗手盆为整体化大台面,方便使用,两侧空间较大。

听雨观澜-118平-现代风格-厨房.jpg

厨房的墙砖以白色理石纹理的釉面砖为主,干净整洁,让这个空间光线更好,同时方便后期打理,橱柜柜门也是比较具有现代感的板材饰面,古朴自然,个性十足。

听雨观澜-118平-现代风格-平面.jpg

案例设计师

林凤装饰设计师

设计师:林凤装饰设计师

从业时间:6年

设计理念:适合才是最重要的,在适合的同时打造独一无二

预约设计师

算算你家装修多少钱

报名即享丰厚赠品,品质装修

免费报价
咨询热线:400-656-9909
20190221103704574636.jpg

精品设计案例

20180612134930523248.jpg 服务号二维码.jpg