立即预约
免费定制整装家居
一站置家 全程无忧 一省到底
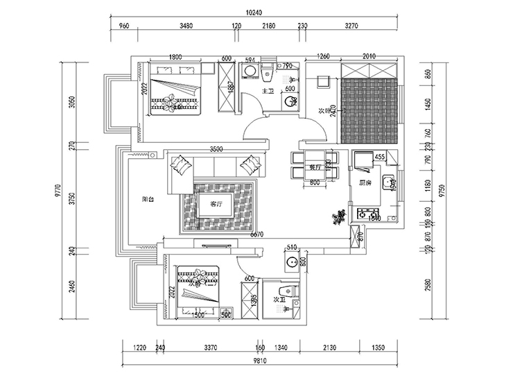
设计理念:本案是一个三居室的高层,此户型装修风格属于现代北欧风格,北欧风格的家居主张人性化简约不简单又十分有温暖元素的风格,此风格深受客户群体的热捧,秉承功能至上、以人为本的设计理念。这个户型比较中规中矩,在造型方面比较简洁,没有繁琐的设计元素,而且大面积的暖色调和灰色调,非常的温馨人性化。
案例详情
本案户型客厅主要作用是满足客户生活起居,客厅墙面没有做过多的造型。电视墙由于面积不大没做装饰性的元素而是整体一面墙采用刷硅藻泥,造型不繁琐。整体配饰温馨舒适干干净净。整体吊顶是石膏角线和石膏板造型棚相结合。正好弥补了原始顶棚的不完美空间。
本案餐厅空间与厨房相互结合。餐厅空间实用空间不大,没有做太多装饰性的造型,餐具和灯具的木材质正好与客厅部分元素相呼应。餐桌是正常形式,比较适合此户型,使用率非常高。
卧室是家居空间比较重要的地方,每天都会使用的空间,舒适度是非常重要的,主卧必备的就是床品和衣柜还有一些配饰,装饰画还有辅助照明,适当在卧室增添一些绿植,效果会更好。在主卧加一部分边棚这样在卧室活动时比较有氛围感。
整体格局来看厨房的空间很大,空间可以利用的非常充分,厨房选择敞开式式空间,厨房加了一组吧台,卡座旁边打了一组酒柜,然后冰箱是嵌入式的,这样对于客厅和餐厅都比较有帮助,采光更好了。厨房砖尽量选择比较干净偏冷色系的砖,这样搭配橱柜更好协调。
精品设计案例
设计说明:
三室两厅一厨两卫,高层整体采用美式风格,色调以深色为主,体现美式的居家感和温馨感。
设计说明:
本案业主为年轻时尚小两口,所以我们考虑到未来想要给未来宝宝一个温馨舒适的一个房间,所以本案整体采用现代风格的手法,运用颜色,来打造整体空间的设计感及时尚感
设计说明:
本案以北欧风格为主题的设计,北欧风格能以现代、简洁、自然的特点俘获人心,所营造出来的生活氛围会让人倍感舒适与自在。
设计说明:
客户是一名成功人士,对于家的执念就是简单干净,客户衣服比较多,所以把每个空间都做了大衣柜,并且融入到设计里